Low-maintenance two-bedroom coach house with garden and parking, close to Truro amenities..
Freehold two-bedroom coach house, built 2007+
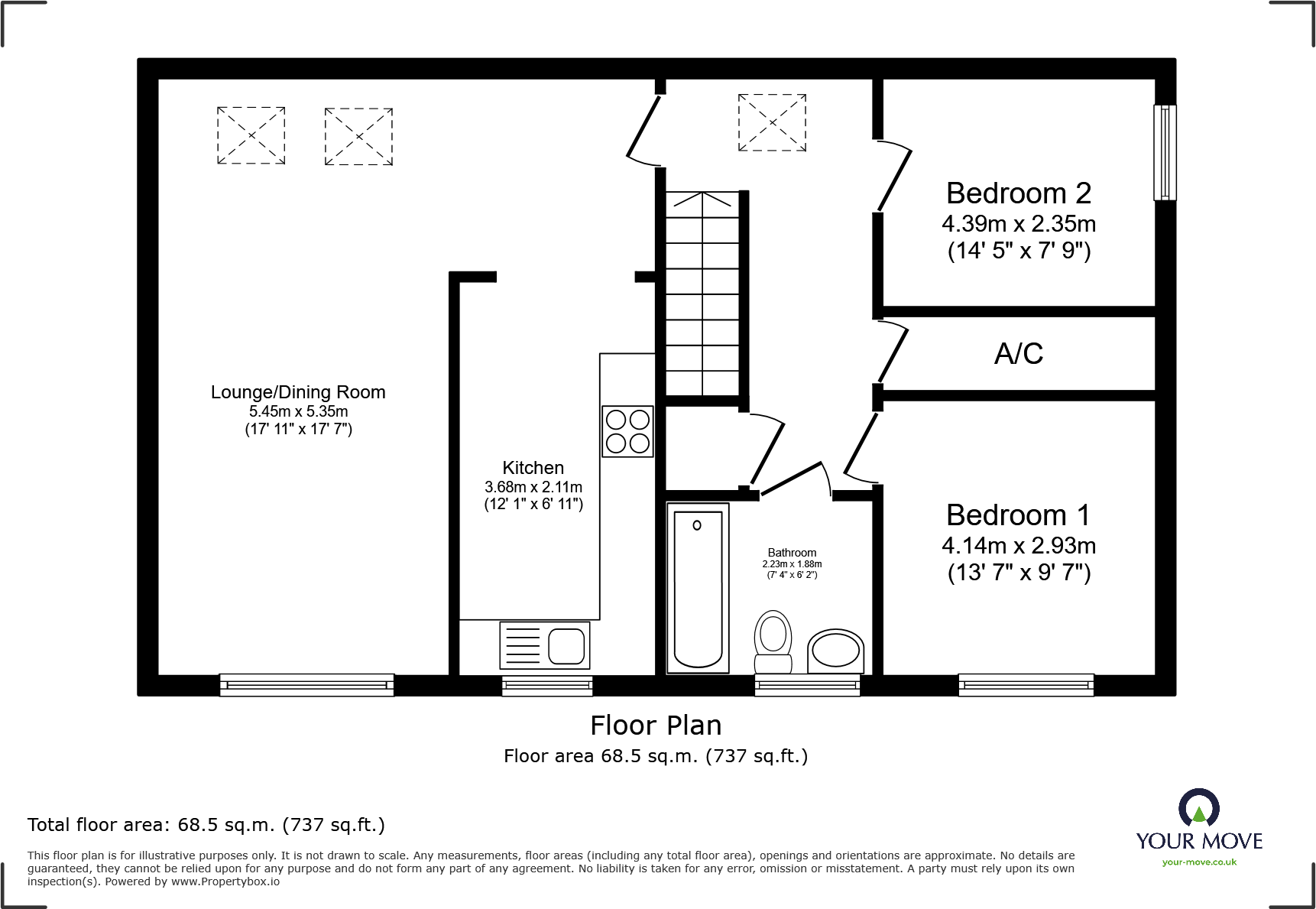
A well-presented two-bedroom coach house on the outskirts of Truro, ideal for first-time buyers or buy-to-let investors. The open-plan lounge/diner and fitted kitchen provide straightforward, low-maintenance living while double glazing and a modern boiler keep running costs sensible. Outside there's an enclosed rear garden and a car port/integral garage for off-street parking.
The layout places principal accommodation on the first floor: two bedrooms, a family bathroom with shower over bath, and useful storage including an airing cupboard and over-stairs cupboard. The property was built post-2007, is freehold and sits in a quiet cul-de-sac close to local schools and amenities, with excellent mobile and broadband coverage.
Notable positives include private outside space, parking, double glazing and an EPC C rating for energy performance. Buyers should note the compact plot and average overall floor area (approximately 737 sq ft), and that accommodation is typical of entry-to-mid market stock rather than a larger family home. Council Tax Band C applies.
This coach house suits someone seeking a low-upkeep home near Truro city centre or an investor looking for a rentable two-bedroom in an affluent, low-crime neighbourhood. It offers immediate move-in potential with straightforward furnishing or minor personalisation rather than major renovation.
2 bedroom flat for sale in Treffry Road, Truro, TR1 — £245,000 • 2 bed • 1 bath • 923 ft²
2 bedroom coach house for sale in Barrack Lane, Truro, TR1 — £300,000 • 2 bed • 2 bath • 750 ft²
2 bedroom detached house for sale in The Parade, Truro, TR1 — £350,000 • 2 bed • 2 bath • 764 ft²
2 bedroom terraced house for sale in Penair View, Truro, TR1 — £235,000 • 2 bed • 1 bath • 614 ft²
3 bedroom semi-detached house for sale in Chirgwin Road, Truro, Cornwall, TR1 — £325,000 • 3 bed • 1 bath • 1045 ft²
2 bedroom terraced house for sale in Glenthorne Road, Truro, TR3 — £235,000 • 2 bed • 1 bath • 547 ft²


















































