Large private garden backing woodland — scope to extend subject to planning.
Detached Victorian cottage with period features
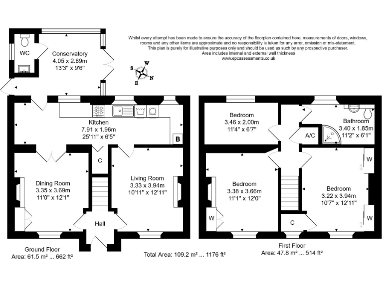
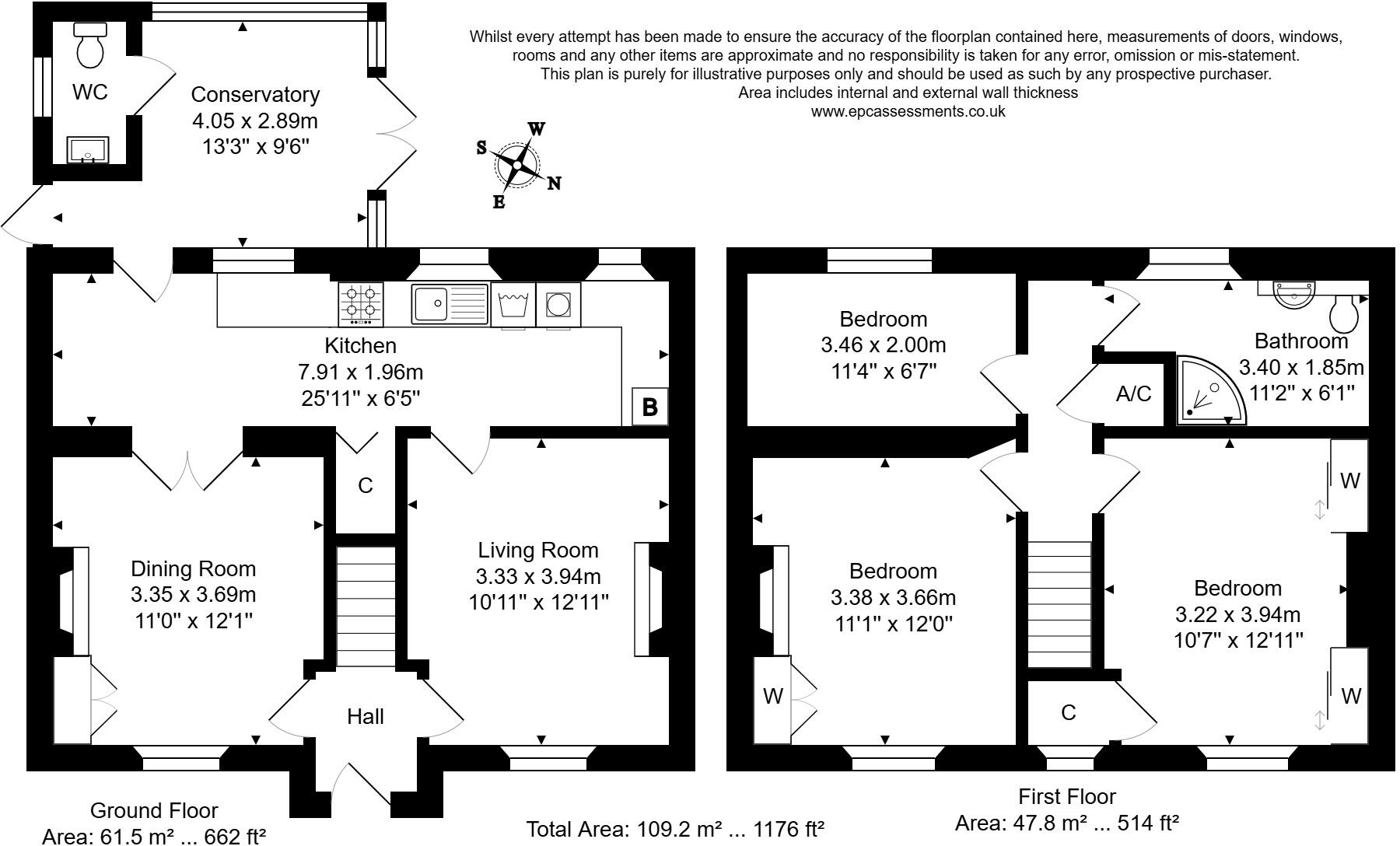
Elmslea Cottage is a detached Victorian home set on a large plot at the edge of Box, backing directly onto woodland for exceptional privacy and views. The house offers flexible, traditional accommodation across roughly 1,176 sq ft: an entrance hall, separate dining and reception rooms, kitchen with conservatory and ground-floor WC, plus three bedrooms and a family bathroom upstairs. Off-street parking and side access to both sides of the property add practical convenience for families.
The garden is the standout feature — a generous lawn with mature trees and private woodland beyond, ideal for children, pets and outdoor entertaining. The layout and plot provide clear potential to extend or reconfigure the living space, subject to planning permission, so buyers seeking long-term value or to personalise a period house will find scope to add modern family spaces.
Buyers should note some material realities: heating currently relies on room heaters and smokeless fuel rather than a modern central system, and the stone walls are assumed uninsulated, which will affect running costs and comfort. Broadband speeds in the area are slow, council tax is above average, and any extensions require planning consent. Taken together, this is a well-presented period home with strong garden and location appeal, best suited to purchasers ready to update heating/insulation and invest in permitted improvements.
3 bedroom detached house for sale in Devizes Road, Box, SN13 — £550,000 • 3 bed • 1 bath • 1077 ft²
5 bedroom detached house for sale in The Ley, Box, SN13 — £800,000 • 5 bed • 2 bath • 1909 ft²
4 bedroom detached house for sale in Devizes Road, Box, SN13 — £1,100,000 • 4 bed • 3 bath • 2283 ft²
5 bedroom detached house for sale in Box, Corsham, SN13 — £1,300,000 • 5 bed • 4 bath • 2779 ft²
3 bedroom detached house for sale in Devizes Road, Box, Corsham, SN13 — £400,000 • 3 bed • 2 bath • 753 ft²
3 bedroom semi-detached house for sale in Gregory Close, Box, Corsham, SN13 — £550,000 • 3 bed • 2 bath • 1299 ft²


























































































