**Standout Features:**
- Modern three-bedroom extended semi-detached house
- Open plan kitchen diner with island and integrated appliances
- Contemporary living room with LED fireplace
- Low-maintenance rear garden with artificial turf
- Off-road parking for up to 2 cars and integral garage
- Master bedroom with ensuite
- EPC Rating: C, Council Tax Band: B
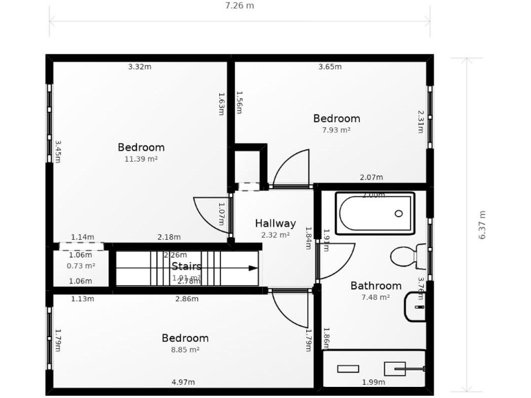
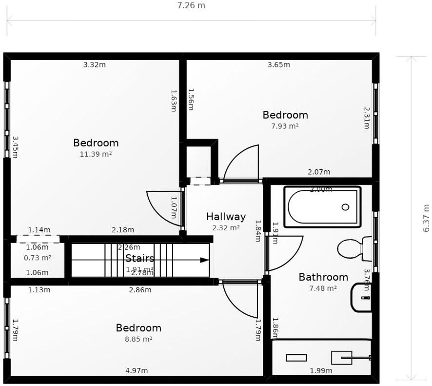
Located in the charming village of Littlethorpe, this beautifully presented three-bedroom extended semi-detached home perfectly blends modern living with family functionality. Upon entry, the inviting cozy living room showcases a built-in media wall with an LED fireplace, leading effortlessly into the heart of the home—the open plan kitchen diner. Here, polished white quartz countertops and a sleek gas hob cater to your culinary needs, while skylights create a bright, airy atmosphere. The bifold doors invite you to enjoy the low-maintenance rear garden which features artificial grass and a patio, ideal for gatherings or a peaceful retreat.
Upstairs, three well-appointed bedrooms await, complemented by a stylish family bathroom featuring a freestanding bath and walk-in shower. The master bedroom boasts a convenient ensuite, perfect for busy mornings. With off-road parking for two vehicles and an integral garage, this home provides easy access to local amenities, reputable schools, and nearby transport links, making it an ideal choice for families or first-time buyers.
Although the plot size is modest, the exemplary modern features and proximity to amenities offer exceptional value for potential homeowners in an affluent, suburban community. Don’t miss the chance to secure this perfect family haven in a desirable location—properties like this don’t last long!
3 bedroom end of terrace house for sale in Cosby Road, Littlethorpe, Leicester, LE19 — £340,000 • 3 bed • 1 bath • 1301 ft²
4 bedroom detached house for sale in Cosby Road, Littlethorpe, Leicester, Leicestershire, LE19 — £425,000 • 4 bed • 2 bath • 1347 ft²
4 bedroom detached house for sale in Riverside Way, Littlethorpe, Leicester, LE19 2PT, LE19 — £375,000 • 4 bed • 3 bath • 1131 ft²
2 bedroom semi-detached house for sale in Gurney Crescent, Littlethorpe., LE19 — £225,000 • 2 bed • 1 bath • 697 ft²
4 bedroom semi-detached house for sale in Sycamore Way, Littlethorpe, Leicester, LE19 — £285,000 • 4 bed • 2 bath • 1257 ft²
2 bedroom terraced house for sale in Cosby Road, Littlethorpe, Leicester, LE19 — £265,000 • 2 bed • 1 bath • 891 ft²


























































































