Chain-free bungalow with scope to modernise and extend, close to Knutsford town centre..
Chain free detached two-bedroom bungalow
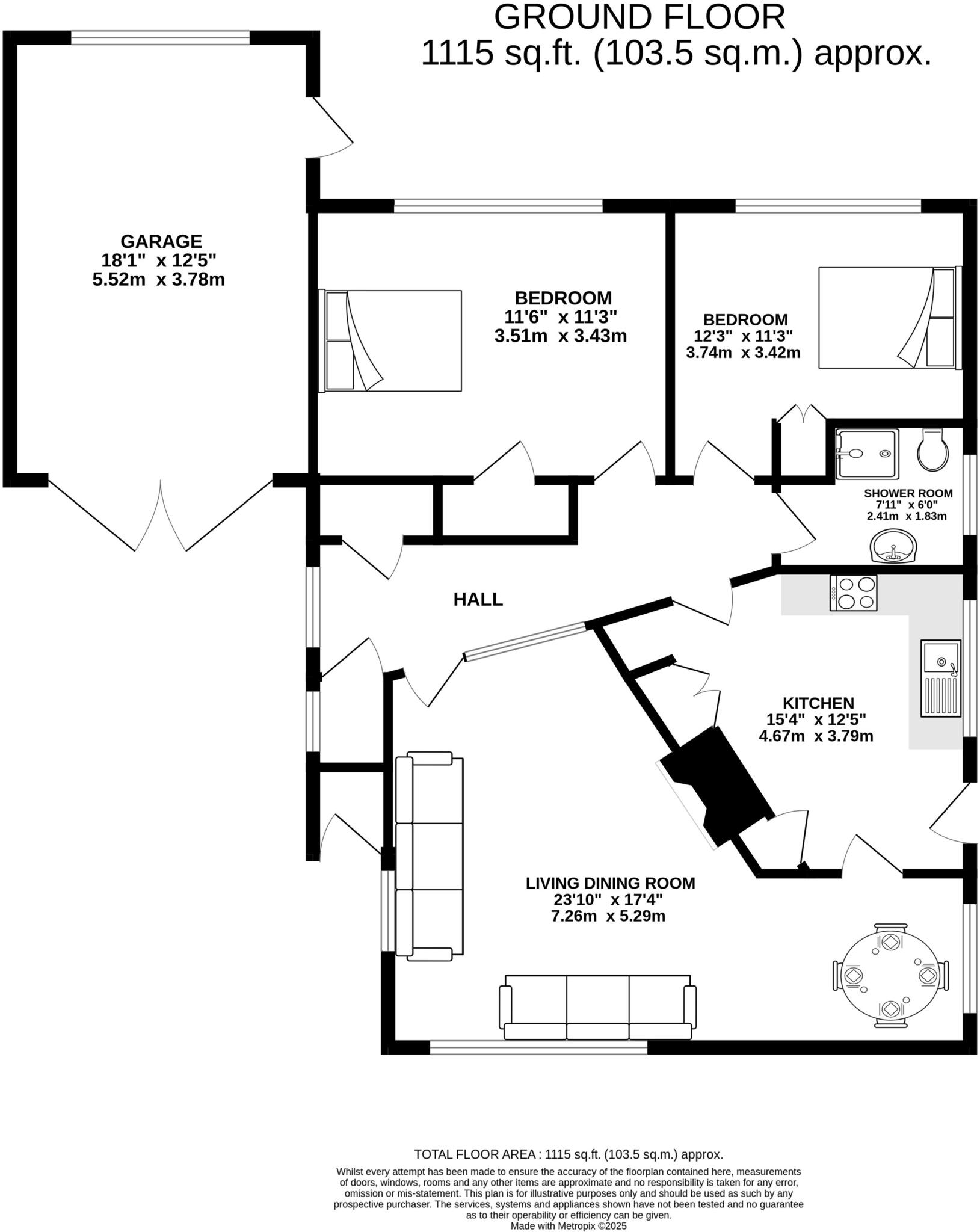
A detached two-bedroom bungalow offered chain free in a popular Parkgate location, a short walk from Knutsford town centre and Tatton Park. The property sits on a decent plot with a private driveway and single garage, and benefits from generous room proportions and a well-maintained enclosed rear garden — ideal for low-maintenance outdoor living.
The bungalow is dated and will suit a buyer seeking renovation or refurbishment to modernise cosmetic and functional elements. There is clear potential to extend (subject to relevant permissions) which could increase living space and value; no planning application details are provided in the listing.
Practical positives include gas central heating to radiators, mains services, double glazing (unknown install date) and fast broadband with excellent mobile signal. Nearby schools and local amenities are within easy reach, making the location convenient for everyday needs.
Important downsides are the property’s need for modernisation throughout and some dated internal finishes; parts of the living room appear to have older single glazing and worn fittings. Tenure is not specified in the listing and any extension work will require planning approval; prospective buyers should confirm tenure, survey condition, and permissions before committing.
2 bedroom bungalow for sale in Parkgate, Knutsford, Cheshire, WA16 — £325,000 • 2 bed • 1 bath • 1049 ft²
2 bedroom detached bungalow for sale in Parkgate, Knutsford, WA16 — £325,000 • 2 bed • 1 bath • 1010 ft²
4 bedroom detached bungalow for sale in Parkgate, Knutsford, WA16 — £525,000 • 4 bed • 3 bath • 1634 ft²
2 bedroom detached bungalow for sale in Mereheath Park, Knutsford, WA16 — £550,000 • 2 bed • 1 bath • 925 ft²
2 bedroom detached bungalow for sale in Brookdale Avenue, Knutsford, WA16 — £425,000 • 2 bed • 1 bath • 977 ft²
2 bedroom bungalow for sale in Chelford Road, Knutsford, Cheshire, WA16 — £525,000 • 2 bed • 1 bath • 1227 ft²






























































