ME1 2BX - 4 bedroom end of terrace house for sale in Foord Street, Ro…

View on Property Piper

4 bedroom end of terrace house for sale in Foord Street, Rochester, Kent, ME1

Summary - 52 FOORD STREET ROCHESTER ME1 2BX

4 bed 1 bath End of Terrace

**Standout Features:**
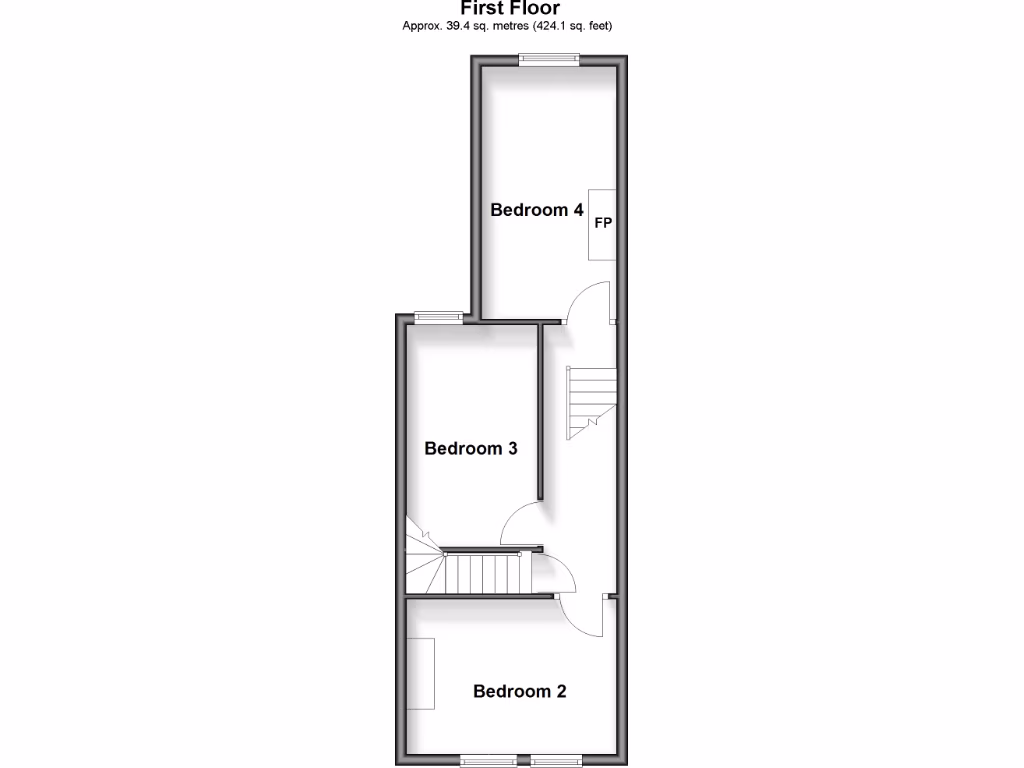
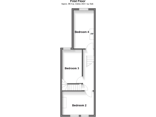
- Four bedrooms, including a loft extension
- Victorian end-terrace style with period features
- Centrally located near the historic High Street and high-speed station
- Chain-free sale, ideal for first-time buyers or investors
- Low-maintenance rear garden
- Affordable council tax

**Concerns:**
- Small overall size with some rooms on the smaller side
- Solid brick construction with no insulation (assumed)
- Located in a high-crime area and very deprived neighborhood

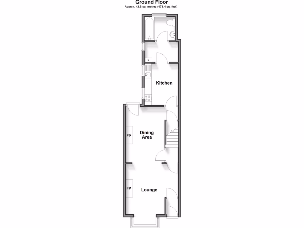
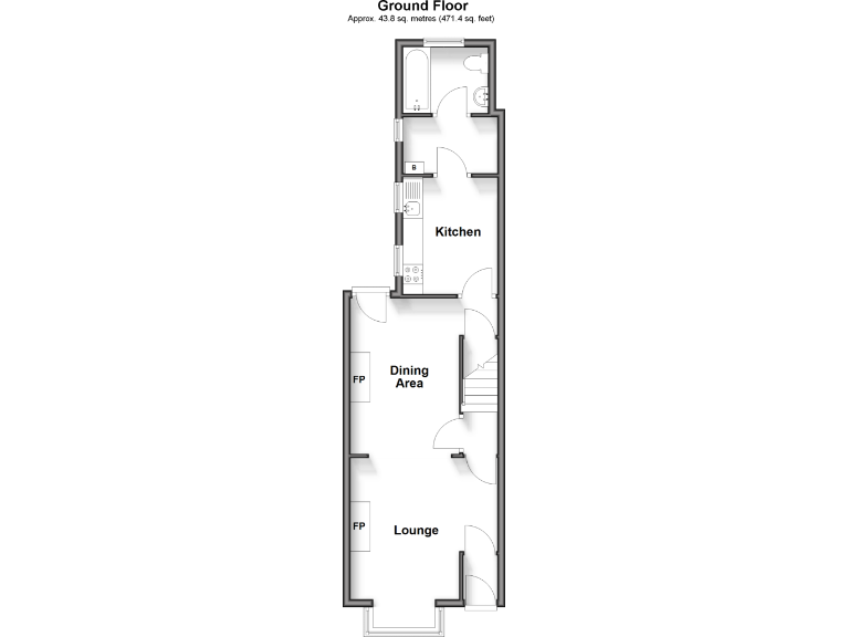
This charming Victorian end-of-terrace house, perfect as a first-time purchase or an investment opportunity, boasts a loft extension creating a versatile fourth bedroom. With 1,088 square feet of living space, this property is ideally located just moments from the historic High Street and a high-speed train station, ensuring convenience for commuting.

While the layout includes some smaller rooms, its appealing character features and chain-free status make it an attractive option. The low-maintenance rear garden adds to its usability, providing an outdoor sanctuary in a charming city setting. Although the area has higher crime rates and is classified as deprived, the potential for high demand and rental opportunities remains strong, especially given the proximity to reputable schools and diverse local amenities. Don’t miss your chance to own this unique property, anticipated to be highly sought-after!

Property Details

Image Descriptions

Floorplan Description

Rooms

Textual Property Features

Detected Visual Features

EPC Details

Nearby Schools

Nearest Bars And Restaurants

,,,,}

Nearest General Shops

,,}

Nearest Grocery shops

,,}

Nearest Supermarkets

,,}

Nearest Religious buildings

,,}

Nearest Medical buildings

,,,}

Nearest Airports

,}

Nearest Leisure Facilities

,,,,}

Nearest Tourist attractions

,,}

Nearest Train stations

,,,,}

Nearest Bus stations and stops

,,,,}

Nearest Hotels

,,}

Tags

Local Market Stats

AirBnB Data

Similar Properties

Meta

High Res Images

Compatible Images

Low res Images

Thumbnails

Raw Images

High Res Floorplan Images

Compatible Floorplan Images

Low res Floorplan Images

FloorplanImages Thumbnail

Raw Floorplan Images