Spacious three-bedroom home with large garage and scenic rural outlook.
Panoramic field views from rear garden and master bedroom
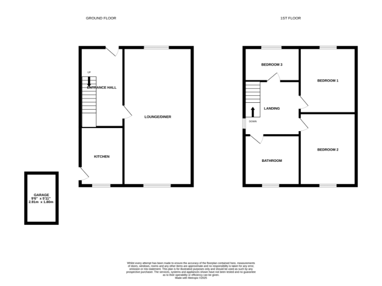
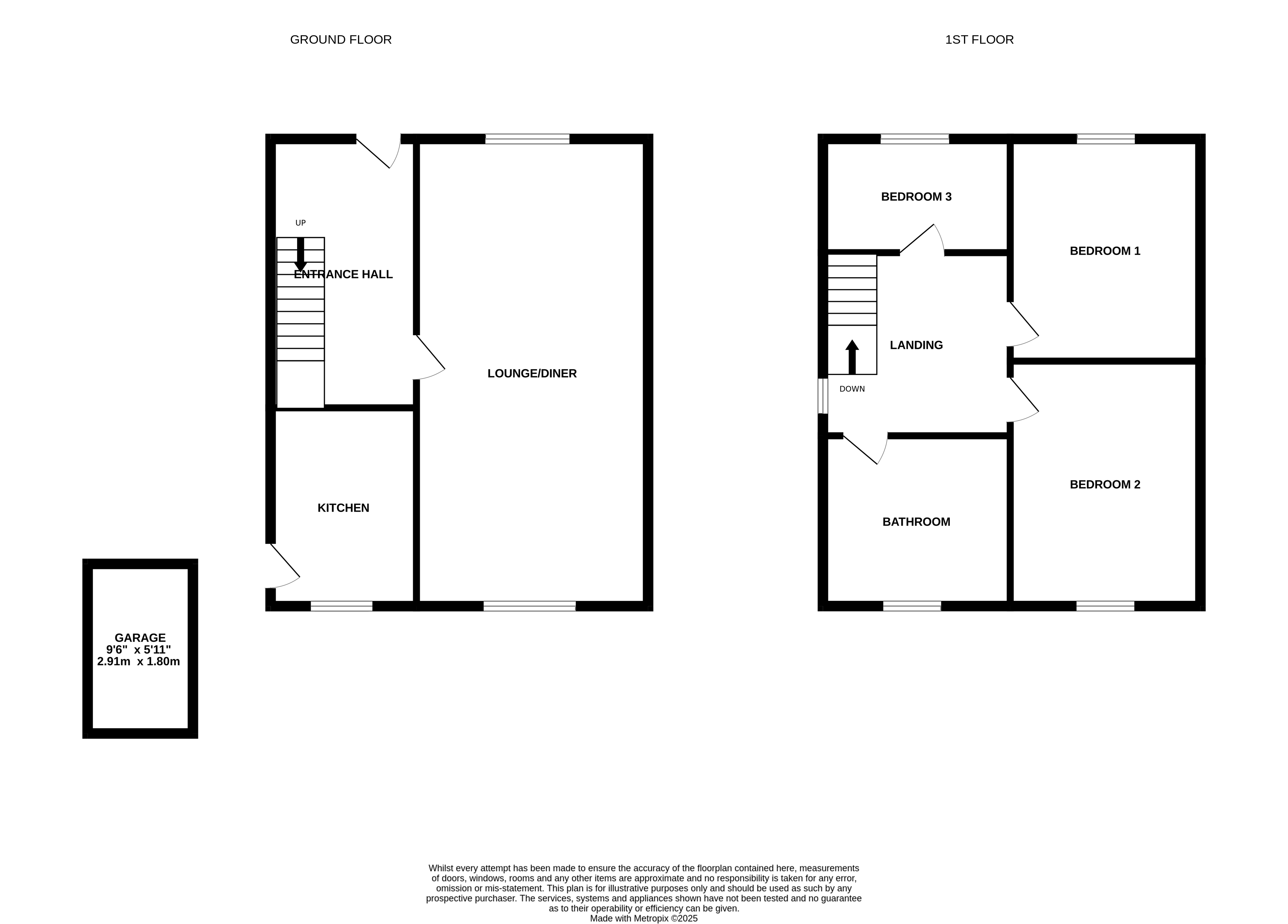
Set on the edge of Freethorpe village, this thoughtfully designed three-bedroom semi delivers generous living space and spectacular field views. A long lounge/diner, well-equipped kitchen and a landscaped rear garden with raised decking create comfortable family living and easy entertaining. The large garage/workshop (approx 30 sqm) and wide driveway offer substantial storage and parking, with scope to convert the outbuilding subject to permissions.
Practical upgrades include a newly fitted air conditioning unit, a boarded loft with lighting and acoustic wall insulation throughout the first floor, improving comfort and usable space. The property is heated by an LPG boiler served from an underground 2000-litre tank; this provides independence from mains gas but means LPG running costs should be considered. Council Tax Band B and an EPC rating of D reflect reasonable outgoings, though the rating indicates potential to improve energy efficiency.
This house will suit families seeking village life with excellent local schools and very low local crime. Note the home has one bathroom and broadband speeds are slow — important for those who work from home or need multiple simultaneous users. Overall, the home offers solid space, clear scope for targeted energy upgrades and a large outbuilding that adds serious value for storage, workshop use or conversion potential.
3 bedroom semi-detached house for sale in Youngs Crescent, Freethorpe, Norwich, NR13 — £240,000 • 3 bed • 1 bath • 984 ft²
3 bedroom end of terrace house for sale in Pound Lane, Fleggburgh, Great Yarmouth, NR29 — £465,000 • 3 bed • 1 bath • 2014 ft²
3 bedroom chalet for sale in Middle Road, Great Plumstead, Norwich, NR13 — £515,000 • 3 bed • 2 bath • 1576 ft²
2 bedroom cottage for sale in Old Chapel Road, Freethorpe, Norwich, NR13 — £250,000 • 2 bed • 1 bath • 682 ft²
2 bedroom semi-detached house for sale in The Green, Freethorpe, Norwich, NR13 — £225,000 • 2 bed • 1 bath • 575 ft²
3 bedroom detached house for sale in Freethorpe, Norwich, NR13 — £650,000 • 3 bed • 2 bath • 1673 ft²














































































