SS0 7SZ - 3 bedroom flat for sale in The Leas, WestcliffOnSea, SS0

View on Property Piper

3 bedroom flat for sale in The Leas, Westcliff-On-Sea, SS0

Summary - STANGATE, 1 FLAT 3 THE LEAS WESTCLIFF-ON-SEA SS0 7SZ

3 bed 2 bath Flat

**Standout Features:**
- Spacious top floor penthouse with stunning estuary views
- 3-4 bedrooms, including a master with en-suite
- Huge open-plan lounge and dining area with two balconies
- Expansive roof terrace perfect for entertaining
- Secure gated parking and large integral double garage
- Excellent broadband and mobile signal

**Concerns:**
- High service charge and council tax
- Area classified as "very deprived" with a corresponding high crime rate

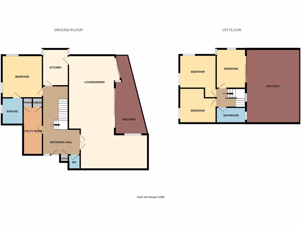
Nestled on the prestigious Leas, this extraordinary penthouse apartment offers a lifestyle of luxury and tranquility with breathtaking views of the estuary. Spanning the top two levels of a modern building, this expansive living space features a south-facing lounge and dining area seamlessly connected to dual balconies, amplifying the indoor-outdoor living experience. The kitchen is fully equipped, while the master suite impresses with substantial fitted wardrobes and an en-suite, making it a comfortable retreat.

Step outside to your private roof terrace, where you can soak in far-reaching views towards Southend Pier and Canary Wharf—ideal for hosting gatherings or peaceful evenings under the stars.

With secure gated parking and an ample double garage, this property ensures convenience and safety in a vibrant seaside locale. Perfect for investors seeking rental potential, families searching for spacious living, or anyone desiring a touch of coastal luxury. Take advantage of this rare opportunity to own one of the finest penthouses in the area, as properties like this don’t often come on the market!

Property Details

Brochure Descriptions

Image Descriptions

Floorplan Description

Rooms

Textual Property Features

Detected Visual Features

EPC Details

Nearby Schools

Nearest Bars And Restaurants

,,,,}

Nearest General Shops

,,}

Nearest Grocery shops

,,}

Nearest Supermarkets

,,}

Nearest Religious buildings

,,}

Nearest Medical buildings

,,,}

Nearest Airports

,}

Nearest Leisure Facilities

,,,,}

Nearest Tourist attractions

,,}

Nearest Train stations

,,,,}

Nearest Bus stations and stops

,,,,}

Nearest Hotels

,,}

Tags

Local Market Stats

AirBnB Data

Similar Properties

Meta

High Res Images

Compatible Images

Low res Images

Thumbnails

Raw Images

High Res Floorplan Images

Compatible Floorplan Images

Low res Floorplan Images

FloorplanImages Thumbnail

Raw Floorplan Images