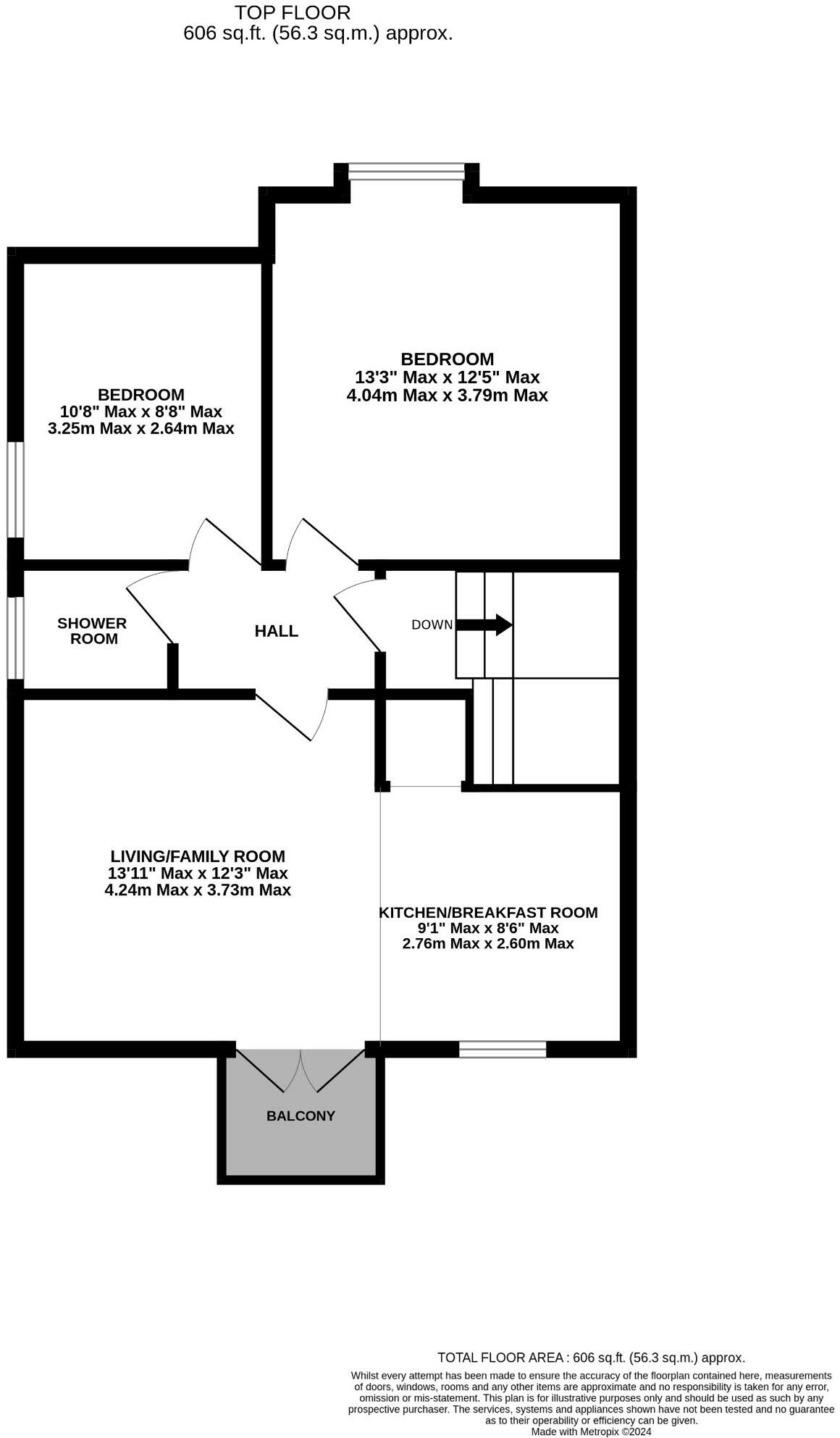
### Standout Features:
- Top floor position with **two double bedrooms**
- **Bright and spacious** open plan kitchen/living/dining area
- Modern fitted kitchen and shower room
- **Balcony with double opening doors** for outdoor enjoyment
- **Allocated off-road parking** and share of freehold
- **Prime tree-lined location** near Southbourne Grove and award-winning beaches
- **Chain-free** sale
### Summary:
Discover coastal living at its finest with this stylish top floor apartment, ideally nestled between the vibrant Southbourne Grove and stunning beaches. Blending comfort and modern design, the open plan kitchen/living/dining area invites abundant natural light and features double-opening doors leading to your private balcony—perfect for morning coffees or evening relaxation. With two well-proportioned double bedrooms and a contemporary shower room, this apartment is ideally suited for families, professionals, or as a rental investment.
While the property benefits from electric heating and double glazing, it's important to note it has lower standard ceiling heights and an average-sized layout, perfect for those who prioritize location over expansive space. The location boasts excellent transport links and local amenities, catering to a lifestyle of convenience. With its share of the freehold and allocated parking, this apartment presents an exclusive opportunity to secure a cozy home in a sought-after community. Schedule a viewing today—coastal gems like this won't last long!
2 bedroom apartment for sale in Stourcliffe Avenue, Bournemouth, Dorset, BH6 — £270,000 • 2 bed • 2 bath • 537 ft²
2 bedroom apartment for sale in Warren Edge Road, Bournemouth, Dorset, BH6 — £325,000 • 2 bed • 2 bath • 598 ft²
2 bedroom apartment for sale in Clifton Road, Bournemouth, Dorset, BH6 — £340,000 • 2 bed • 1 bath • 800 ft²
2 bedroom flat for sale in Grand Avenue, Southbourne, Bournemouth, BH6 — £435,000 • 2 bed • 2 bath • 1147 ft²
2 bedroom apartment for sale in Grand Avenue, Bournemouth, Dorset, BH6 — £350,000 • 2 bed • 2 bath • 950 ft²
2 bedroom flat for sale in Grove Gardens, 116 Southbourne Road, Southbourne BH6 — £260,000 • 2 bed • 2 bath • 707 ft²


















































































































