Modern family living on a very large private plot near countryside walks.
Newly built four-bedroom detached family home
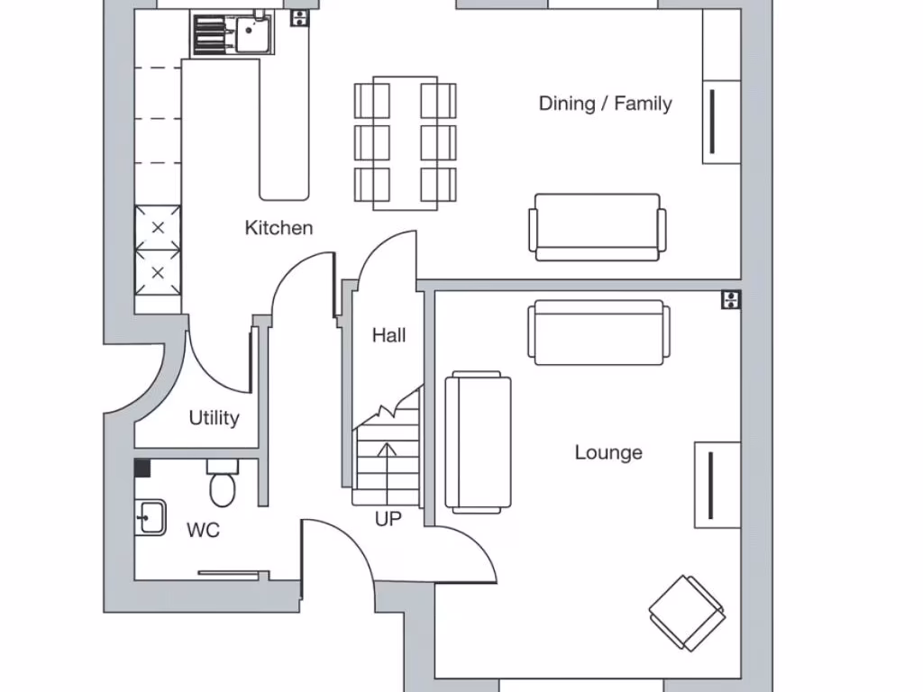
A newly built four-bedroom detached home finished to a modern standard and styled with Georgian-inspired proportions. The house sits on a very large plot with landscaped front and rear gardens, a substantial patio area and off-street parking. Interiors include an open-plan kitchen–living area with patio doors, a separate front lounge, ground-floor cloakroom and utility, plus three ensuite/shower facilities across the layout.
This property will suit families looking for space and modern convenience: a ground-floor living flow for daily life and a top-floor second master suite ideal for guests or older children. The development is small and limited to 11 plots, giving a quieter suburban feel close to local shops, leisure facilities and countryside walking routes.
Buyers should note a few important practical considerations: broadband speeds are very slow in this area, the wider locality is classified as very deprived, and council tax banding remains to be confirmed. Crime levels are low and there is easy road access toward the M4 corridor for longer commutes.
Overall, the home offers generous accommodation, contemporary fittings and a large private plot — attractive for families prioritising space and outdoor privacy — while requiring purchasers to accept limited digital connectivity and wider-area economic challenges.
4 bedroom detached house for sale in Gwaun Henllan, Ammanford, Carmarthenshire, SA18 — £490,000 • 4 bed • 2 bath
4 bedroom detached house for sale in Parc Mawr, Penllergaer, Swansea, SA4 — £484,995 • 4 bed • 1 bath
4 bedroom semi-detached house for sale in Parc Mawr, Penllergaer, Swansea, SA4 — £364,995 • 4 bed • 1 bath
4 bedroom detached house for sale in Parc Mawr, Penllergaer, Swansea, SA4 — £484,995 • 4 bed • 1 bath
4 bedroom semi-detached house for sale in Parc Mawr, Penllergaer, Swansea, SA4 — £364,995 • 4 bed • 1 bath
4 bedroom detached house for sale in School Gardens, Brecon, Powys, LD3 — £499,000 • 4 bed • 2 bath • 1551 ft²






























