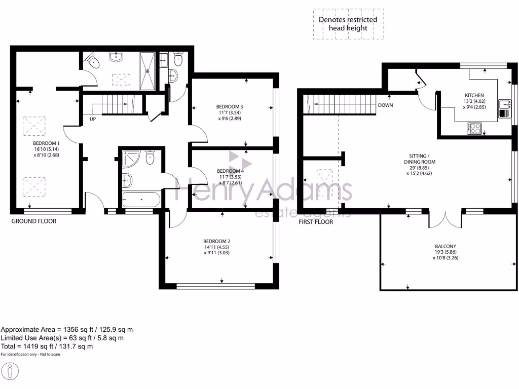
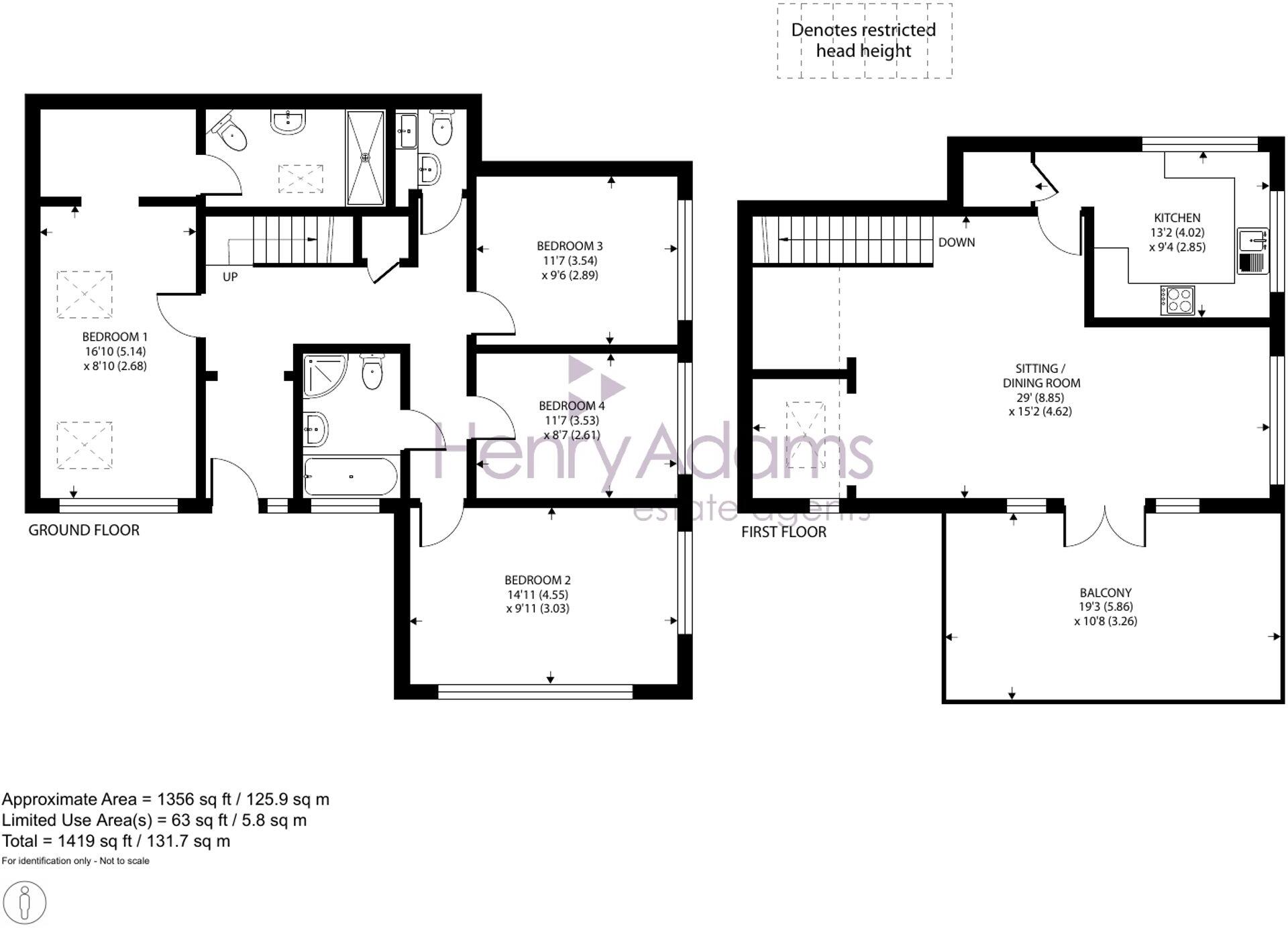
Four-bedroom detached home with South Downs views and roof terrace.
Upside-down layout with first-floor sitting room for panoramic views
Set over two floors in an upside-down layout, this four-bedroom detached home makes the most of spectacular views across the Pulborough Wildbrooks to the South Downs. The first-floor sitting room and adjoining roof terrace provide a sunny, elevated spot for entertaining or everyday living. The main bedroom has an en-suite shower and a dressing area with fitted wardrobes; three further double bedrooms and a family bathroom provide practical family accommodation.
Outside, a decent plot includes an ornamental pond, a useful garden shed and off-street parking for two vehicles with a separate garage. The house sits within easy walking distance of the station, primary schools and local shops, making everyday journeys straightforward. Mobile signal is excellent and there is mains gas central heating throughout.
The property dates from the mid-20th century and has period character, but it is offered with an EPC rating of D and sits in a higher council tax band — buyers should budget for energy improvements and possible modernisation. Broadband speeds are average and some cosmetic updating would enhance comfort and efficiency. No flooding risk is recorded.
This home will suit a family looking for spacious rooms, memorable views and convenient access to local amenities, or buyers seeking a character property with scope to update and add value.
4 bedroom detached house for sale in Lower Street, Pulborough, West Sussex, RH20 — £675,000 • 4 bed • 3 bath • 1638 ft²
4 bedroom detached house for sale in Old London Road, Washington, RH20 — £550,000 • 4 bed • 2 bath • 1421 ft²
4 bedroom detached house for sale in Hormare Crescent, Storrington, RH20 — £550,000 • 4 bed • 2 bath • 1510 ft²
4 bedroom detached house for sale in Fryern Road, Storrington, RH20 — £1,100,000 • 4 bed • 3 bath • 2228 ft²
2 bedroom detached house for sale in Moat Lane, Pulborough, RH20 — £475,000 • 2 bed • 1 bath • 1313 ft²
4 bedroom detached house for sale in Rectory Lane, Pulborough, West Sussex, RH20 — £795,000 • 4 bed • 2 bath • 1539 ft²


















































































































