RG7 5TZ - 4 bedroom flat for sale in Abbey Gardens, READING, RG7

View on Property Piper

4 bedroom flat for sale in Abbey Gardens, READING, RG7

Summary - 6, ABBEY GARDENS RG7 5TZ

4 bed 4 bath Flat

**Standout Features:**
- Unique converted ecclesiastical apartment (former Douai Abbey School)
- Spacious open-plan living area with vaulted ceilings and modernized Gothic architecture
- 4 well-proportioned bedrooms, each with ensuite bathrooms
- Internal courtyard and allocated parking (2 spaces total)
- Luxury smart home features with Bowers and Wilkins sound system
- Excellent condition with underfloor heating and high-quality finishes

**Potential Downsides:**
- Leasehold property with 982 years remaining
- High council tax band (H)
- Service charge of approximately £3984 per year

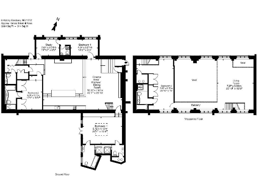
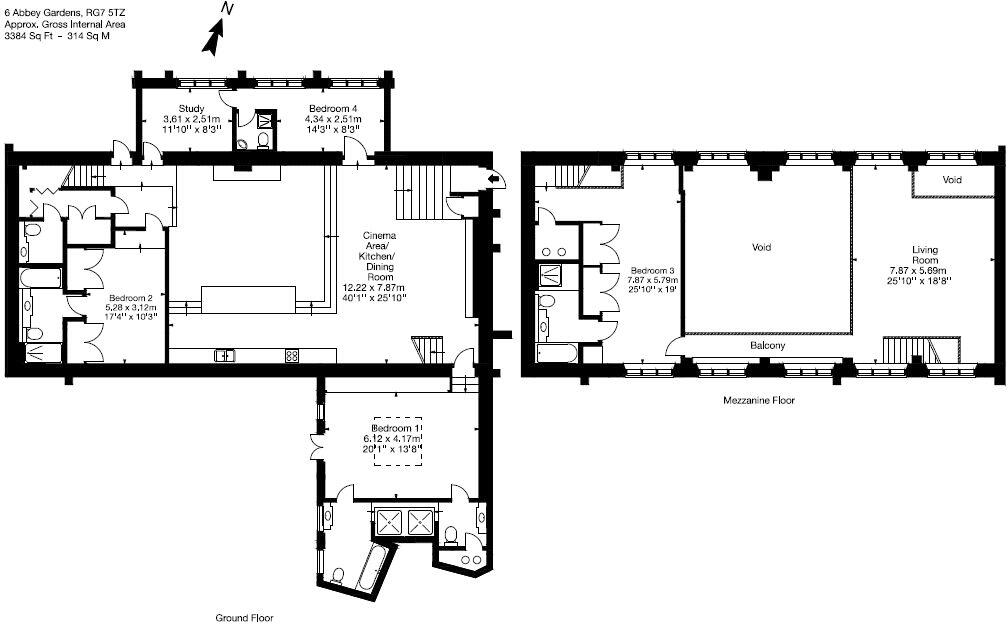
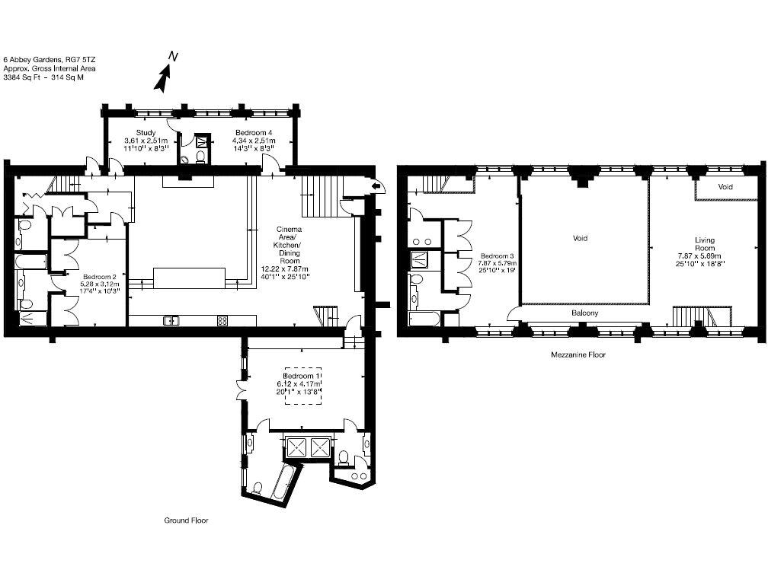
Experience the breathtaking charm of this exceptional apartment, boasting a unique blend of history and modern luxury. With nearly 3,500 sq ft of meticulously maintained living space, this home features dramatic double-height ceilings and grand stained-glass windows, creating a stunning backdrop for both relaxation and entertainment. The open-plan reception area is complemented by a cozy cinema nook and a gourmet kitchen, making it perfect for family gatherings or hosting friends. Each of the four spacious bedrooms comes with its own ensuite, ensuring privacy and comfort for everyone.

Nestled in the serene village of Woolhampton, you're conveniently located between Newbury and Reading, with excellent local amenities, schools, and direct rail links to London. Take advantage of the beautifully manicured communal gardens and the added security of a concierge service. This is not just a property; it is a lifestyle choice that combines comfort, elegance, and a touch of exclusivity. Don’t miss out on this rare opportunity—schedule a viewing today to secure your dream home!

Property Details

Image Descriptions

Floorplan Description

Rooms

Textual Property Features

Detected Visual Features

Nearby Schools

Nearest Bars And Restaurants

,,,,}

Nearest General Shops

,,}

Nearest Grocery shops

,,}

Nearest Supermarkets

,,}

Nearest Religious buildings

,,}

Nearest Medical buildings

,,,}

Nearest Leisure Facilities

,,,,}

Nearest Tourist attractions

,,}

Nearest Train stations

,,,,}

Nearest Bus stations and stops

,,,,}

Nearest Hotels

,,}

Tags

Local Market Stats

AirBnB Data

Similar Properties

Meta

High Res Images

Compatible Images

Low res Images

Thumbnails

Raw Images

High Res Floorplan Images

Compatible Floorplan Images

Low res Floorplan Images

FloorplanImages Thumbnail

Raw Floorplan Images