Single-level seaside home with large plot and renovation potential.
Detached single-storey bungalow on a large plot, private lane location
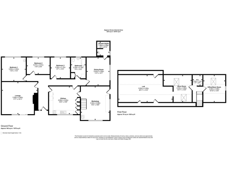
Set within the Pembrokeshire Coast National Park and just under 500 yards from Nolton Haven beach, this detached mid-century bungalow offers single-storey living with genuine coastal access. The layout includes an entrance hall, living room, kitchen, three to four bedrooms, an en-suite shower room, and a family bathroom — all on one level for easy, accessible living. A front garden, gravel driveway and large plot surround the house, giving privacy and scope for outdoor enjoyment.
The property requires modernisation throughout, presenting a clear opportunity to tailor fixtures, finishes and layout to personal taste. There is useful ancillary space off the kitchen: a workshop with steps up to an office, storage room and a large loft. Subject to planning permission the loft/roof space could be converted to provide extra living accommodation, increasing flexibility and value.
Practical details: heating is via an LPG boiler with radiators (not a mains gas connection), double glazing is fitted (installation date unknown) and the EPC is E. There is no mobile phone signal at the property, though fast broadband is available. The bungalow is offered freehold and with no onward chain.
This home will suit buyers seeking quiet coastal life with a manageable, single-level home to adapt and improve — ideal for downsizers or buyers wanting a seaside base. Be realistic about the renovation work required: updating will bring the property in line with modern standards and maximise its strong location and generous footprint.
3 bedroom bungalow for sale in St. Ishmaels, Haverfordwest, Pembrokeshire, SA62 — £350,000 • 3 bed • 2 bath • 1491 ft²
3 bedroom detached bungalow for sale in Gateholm Avenue, Milford Haven, SA73 — £299,950 • 3 bed • 3 bath • 1821 ft²
4 bedroom detached house for sale in Croft Road, Broad Haven, Haverfordwest, SA62 — £299,950 • 4 bed • 2 bath • 1548 ft²
4 bedroom bungalow for sale in Atlantic Drive, Broad Haven, Haverfordwest, Pembrokeshire, SA62 — £325,000 • 4 bed • 2 bath • 1477 ft²
3 bedroom detached bungalow for sale in The Jays, 8 Elm Grove, Honeyborough Common, Neyland, SA73 — £285,000 • 3 bed • 1 bath • 1237 ft²
3 bedroom detached bungalow for sale in Croft Road, Broad Haven, Haverfordwest, SA62 — £290,000 • 3 bed • 1 bath • 1069 ft²


























































































