WS3 2UY - 3 bedroom semidetached house for sale in 450 Bloxwich Road,…

View on Property Piper

3 bedroom semi-detached house for sale in 450 Bloxwich Road, Bloxwich, Walsall, WS3 2UY, WS3

Summary - 450, BLOXWICH ROAD WS3 2UY

3 bed 1 bath Semi-Detached

**Standout Features:**
- Freehold semi-detached property
- 3 bedrooms and 1 bathroom
- Total area of 1,361 sq ft
- Chain-free with vacant possession upon completion
- Off-street parking and a garden
- Double glazed windows and gas central heating
- Convenient location in WS3 2UY
- Auction date: September 11, 2025, starting at £99,000

**Notable Concerns:**
- Requires potential renovation (current condition not specified)
- Energy Performance Rating: E
- Solid brick walls without insulation (assumed)
- Area classified as very deprived

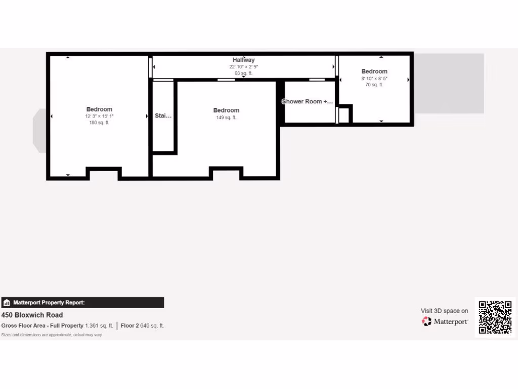
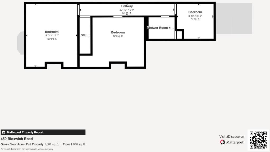
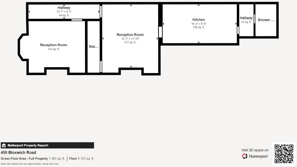
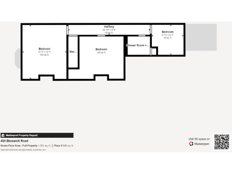
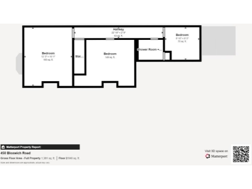
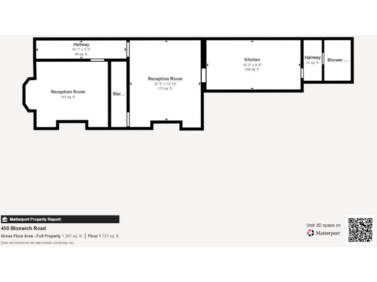
This spacious freehold semi-detached property, boasting 3 bedrooms and a garden, offers a fantastic opportunity for families and investors alike, especially given its prominent Victorian architecture and the potential for renovations. Located within the major conurbation of WS3 2UY, this home presents a sizable layout featuring two reception rooms, a kitchen, and a shower room on the ground floor, along with a landing leading to three bedrooms and an additional shower room upstairs.

Despite its appealing features, potential buyers should consider the need for energy efficiency improvements, as indicated by its Energy Performance Rating of E. The property is chain-free, providing an uncomplicated acquisition process with vacant possession available upon completion. Positioned in an area with essential amenities, including schools with good Ofsted ratings, and excellent mobile and broadband connectivity, this property is perfect for those seeking long-term value in a developing neighborhood. Renovation flexibility allows you to create your ideal space, making it an exclusive opportunity in today’s market. Don’t miss the auction on September 11, 2025; properties like this aren't available for long!

Property Details

Image Descriptions

Floorplan Description

Rooms

Textual Property Features

Detected Visual Features

EPC Details

Nearby Schools

Nearest Bars And Restaurants

,,,,}

Nearest General Shops

,,}

Nearest Grocery shops

,,}

Nearest Supermarkets

,,}

Nearest Religious buildings

,,}

Nearest Medical buildings

,,,}

Nearest Airports

}

Nearest Leisure Facilities

,,,,}

Nearest Tourist attractions

,,}

Nearest Train stations

,,,,}

Nearest Bus stations and stops

,,,,}

Nearest Hotels

,,}

Tags

Local Market Stats

Similar Properties

Meta

High Res Images

Compatible Images

Low res Images

Thumbnails

Raw Images

High Res Floorplan Images

Compatible Floorplan Images

Low res Floorplan Images

FloorplanImages Thumbnail

Raw Floorplan Images