Smart new-build living with garden and parking for first-time buyers.
- New-build three-storey semi-detached home
- Energy-efficient construction and systems
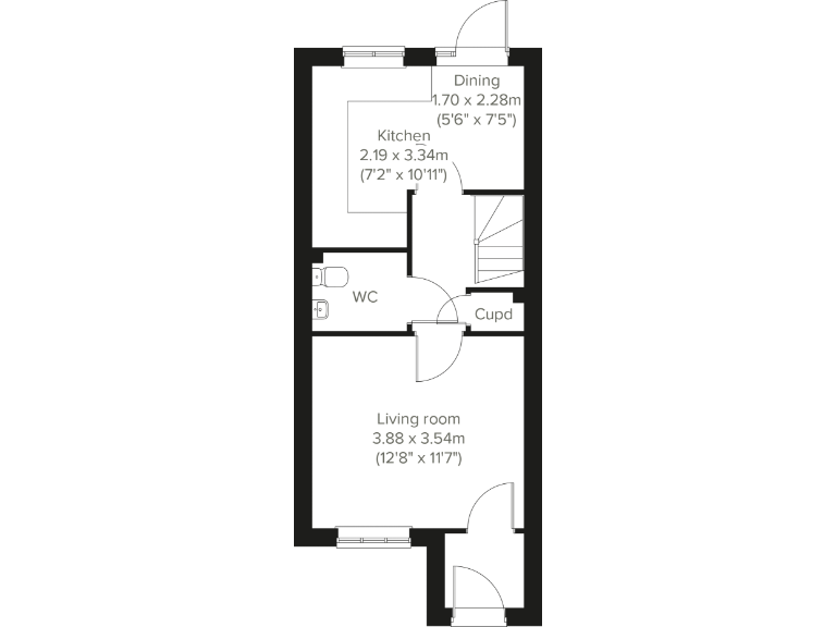
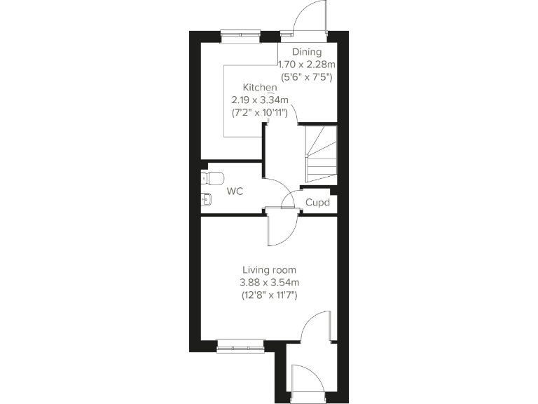
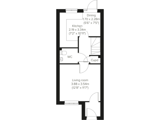
- Open-plan kitchen/dining with outside access
- Top-floor bedroom with en suite; family bathroom present
- Compact interior (approx. 530 sq ft); modest room sizes
- Large plot with private garden and allocated off-street parking
- Located in mixed-tenure area with higher deprivation
- Council tax band not yet set; confirm post-occupation
A compact three-bedroom new-build semi with contemporary styling and efficient systems, suited to first-time buyers or young families seeking low-maintenance living. The ground floor offers an open-plan kitchen/dining area with outside access and a front-aspect living room; useful extras include an enclosed porch, downstairs WC and three storage cupboards. The top-floor main bedroom has an en suite and there is a family bathroom on the middle floor — buyers should confirm the final sanitary count with the developer.
The property is energy efficient, comes with allocated off-street parking and a private garden, and sits on a relatively large plot for the development. Finished in modern brick with dormer windows across three storeys, it delivers good kerb appeal and straightforward, economical running costs.
Practical considerations: the interior is compact (approx. 530 sq ft) with modest room dimensions, so it will suit buyers who prioritise location and low maintenance over generous living space. The wider neighbourhood is a major conurbation with mixed tenure and higher-than-average deprivation; local amenities, schools and public transport are nearby but prospective buyers should visit to assess the immediate street environment and community feel.
3 bedroom semi-detached house for sale in Friar Park Road,
Wednesbury,
WS10 0JS, WS10 — £305,000 • 3 bed • 1 bath • 656 ft²
3 bedroom semi-detached house for sale in Friar Park Road,
Wednesbury,
WS10 0JS, WS10 — £305,000 • 3 bed • 1 bath • 656 ft²
2 bedroom semi-detached house for sale in Friar Park Road,
Wednesbury,
WS10 0JS, WS10 — £270,000 • 2 bed • 1 bath • 331 ft²
2 bedroom semi-detached house for sale in Friar Park Road,
Wednesbury,
WS10 0JS, WS10 — £224,000 • 2 bed • 1 bath • 332 ft²
3 bedroom semi-detached house for sale in Friar Park Road,
Wednesbury,
WS10 0JS, WS10 — £287,000 • 3 bed • 1 bath • 795 ft²
3 bedroom terraced house for sale in Friar Park Road,
Wednesbury,
WS10 0JS, WS10 — £280,000 • 3 bed • 1 bath • 547 ft²


























































































































