Move-in ready three-bed home close to town amenities and countryside.
New-build detached home with 10-year NHBC warranty
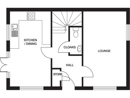
Open-plan kitchen/diner with integrated appliances and French doors
Separate lounge; master bedroom includes en-suite
Off-street parking and private rear garden
Compact internal size (approx. 642 sq ft)
Situated in a small town fringe, near countryside walks
Local crime levels reported above average
Freehold tenure; built by established volume housebuilder
This new-build three-bedroom detached home on Selby Road offers a compact, contemporary layout ideal for first-time buyers or small families. Ground floor living includes a separate lounge and an open-plan kitchen/dining area with integrated appliances and French doors that open onto the rear garden, creating a bright daily hub. The master bedroom benefits from an en-suite while two further bedrooms and a family bathroom are upstairs.
Built by Lovell Homes and sold freehold with a 10-year NHBC warranty, the property provides modern fixtures, fast broadband potential and off-street parking — practical for commuters and those working remotely. The plot sits on the edge of Howden with ready access to local shops, cobbled high street character, the Minster, and nearby countryside for outdoor pursuits.
Buyers should note the overall internal size is modest (approximately 642 sq ft) and the development is in a small town fringe setting rather than a rural seclusion. Local crime levels are above average for the area, and family accommodation proportions are typical of starter homes, so purchasers seeking larger rooms or extensive gardens may need to consider alternative options or upgrades.
Overall, this home suits a buyer seeking a low-maintenance, move-in-ready starter property with modern specification, decent warranties and easy access to both town amenities and nearby open countryside.
3 bedroom detached house for sale in Selby Road, Howden, Goole, DN14 — £306,995 • 3 bed • 1 bath • 794 ft²
3 bedroom detached house for sale in Selby Road, Howden, Goole, DN14 — £316,995 • 3 bed • 1 bath • 878 ft²
3 bedroom detached house for sale in Selby Road, Howden, Goole, DN14 — £296,995 • 3 bed • 1 bath • 595 ft²
3 bedroom detached house for sale in Selby Road, Howden, Goole, DN14 — £296,995 • 3 bed • 1 bath • 813 ft²
4 bedroom detached house for sale in Selby Road, Howden, Goole, DN14 — £445,995 • 4 bed • 1 bath • 1307 ft²
3 bedroom detached house for sale in Selby Road,
Howden,
DN14 7GE, DN14 — £296,995 • 3 bed • 2 bath






















































