Modern, energy-efficient five-bed family house with en suites and garden..
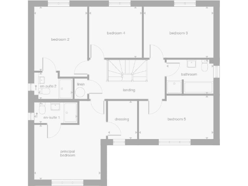
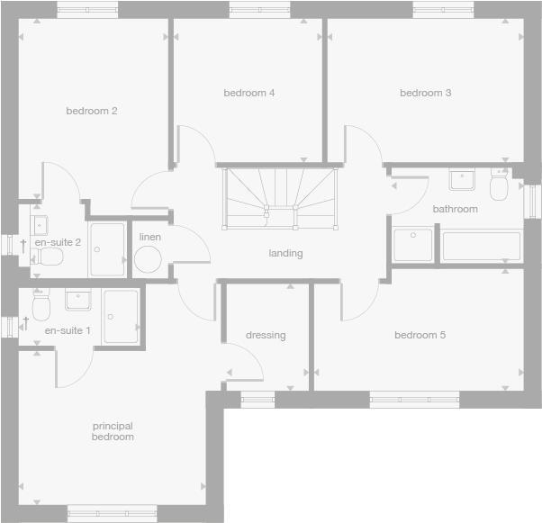
- Five bedrooms including two en suites and dressing area in principal
- Open-plan kitchen/dining/family room with French doors to garden
- Large lounge with feature bay window
- Integral single garage and driveway parking
- Energy-efficient design with likely lower running costs
- 10-year NHBC warranty and new-build condition
- Compact total area (~1,056 sq ft) for a five-bed property
- Annual service charge £168.70; council tax band TBC
A five-bedroom new-build designed for family life, this detached house combines contemporary open-plan living with practical storage and energy-efficient features. The ground floor centres on a generous lounge with bay window and a spacious kitchen/dining/family area that opens via French doors to the rear garden — ideal for everyday family use and entertaining.
The first floor delivers an impressive principal bedroom with dressing area and en suite, plus a second bedroom with its own en suite and three further bedrooms for children, guests or a home office. Built by a reputable developer, the property includes a 10-year NHBC warranty and an energy-efficient design that helps reduce running costs.
Practical considerations are clear: the listed total floor area (approx. 1,056 sq ft) is compact for five bedrooms, so rooms are efficiently planned rather than expansive. Parking is provided by a single integral garage and driveway; there is an annual service charge of £168.70. Broadband is fast and mobile signal excellent in this affluent, semi-rural Northallerton location.
Overall this is a modern family home that lowers short-term maintenance and energy bills while offering sensible space for a growing household. Buyers looking for large reception areas or very generous bedroom sizes should check room dimensions and visit to assess space in person.
4 bedroom detached house for sale in Off Stokesley Road,
Northallerton,
DL6 1RG, DL6 — £390,000 • 4 bed • 1 bath • 852 ft²
4 bedroom detached house for sale in Off Stokesley Road,
Northallerton,
DL6 1RG, DL6 — £405,000 • 4 bed • 1 bath • 852 ft²
3 bedroom semi-detached house for sale in Off Stokesley Road,
Northallerton,
DL6 1RG, DL6 — £260,000 • 3 bed • 1 bath • 699 ft²
3 bedroom semi-detached house for sale in Off Stokesley Road,
Northallerton,
DL6 1RG, DL6 — £282,000 • 3 bed • 1 bath • 699 ft²
3 bedroom detached house for sale in Off Stokesley Road,
Northallerton,
DL6 1RG, DL6 — £340,000 • 3 bed • 1 bath • 948 ft²
3 bedroom semi-detached house for sale in Off Stokesley Road,
Northallerton,
DL6 1RG, DL6 — £292,000 • 3 bed • 1 bath • 669 ft²










































































































