**Standout Features:**
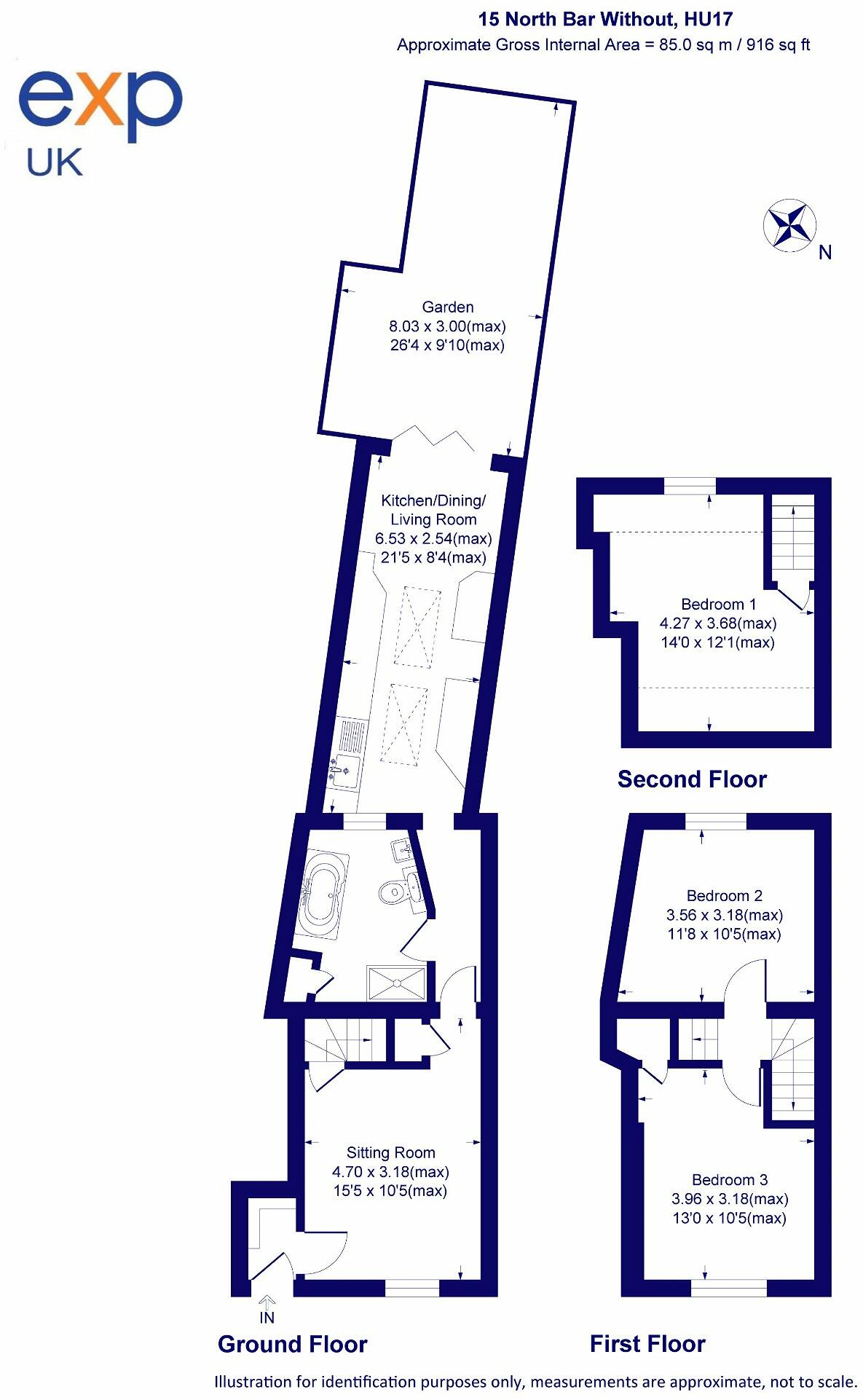
- Charming 3 bedroom terraced house in North Bar Without, Beverley.
- Blend of character and contemporary design.
- Contemporary styled open-plan kitchen/diner with high-end appliances.
- Luxurious Villeroy & Boch bathroom suite.
- No onward chain, allowing for a quicker sale.
- Private courtyard garden, ideal for entertaining.
- Located within a pleasant neighborhood with low crime rates.
**Summary:**
Discover the perfect blend of character and modern convenience in this charming 3-bedroom terraced house located in the heart of Beverley. Within a level walk of town amenities, this property has been meticulously remodeled, featuring a spacious living room adorned with oak wood laminate flooring and a striking remote-controlled gas fire, creating a cozy atmosphere for relaxation or entertaining.
The impressive contemporary kitchen diner boasts high-gloss graphite cabinetry, top-of-the-line Siemens and AEG integrated appliances, and opens seamlessly to a private courtyard garden—perfect for summer gatherings. The luxurious bathroom, equipped with Villeroy & Boch fittings, offers both style and functionality, promoting an indulgent experience.
With no onward chain, this property is ready for you to make your own. Perfect for families or investors looking for a low-maintenance home in an affluent area. Act quickly to seize this exclusive opportunity to own a beautifully designed home in a sought-after location—properties like this don’t stay on the market for long!
3 bedroom terraced house for sale in North Bar Without, Beverley, HU17 — £380,000 • 3 bed • 2 bath • 1158 ft²
2 bedroom terraced house for sale in Lairgate, Beverley, HU17 — £199,950 • 2 bed • 2 bath • 775 ft²
2 bedroom semi-detached house for sale in The Old Racing Stables, North Bar Within, Beverley, HU17 8DL, HU17 — £340,000 • 2 bed • 1 bath • 665 ft²
2 bedroom terraced house for sale in Norton Street, Beverley, HU17 — £190,000 • 2 bed • 1 bath • 851 ft²
3 bedroom terraced house for sale in North Bar Without, Beverley, HU17 — £300,000 • 3 bed • 1 bath • 707 ft²
3 bedroom town house for sale in Landress Lane, Beverley, HU17 — £324,950 • 3 bed • 1 bath • 1065 ft²














































