Spacious three-bed home with garden and strong rental potential.
Chain free three-bedroom mid-terrace in central Cheltenham
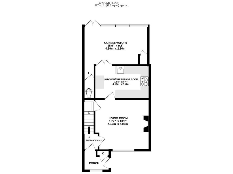
A well-located three-bedroom mid-terrace in central Cheltenham offered chain free — ideal for first-time buyers or buy-to-let investors. The house spreads over three floors, with a larger-than-average master bedroom and a useful conservatory that extends living space into the enclosed rear garden. Period features such as a cast-iron fireplace and engineered oak flooring give character alongside practical modern fittings including a fitted kitchen and an en-suite wet room.
Practical strengths include mains gas central heating, double glazing, an EPC rating of C72, and easy walking access to Pittville Park, the Brewery Quarter and town amenities. The property also shows strong rental potential (advertised estimate c. £1,500pcm) making it attractive for investors seeking a centrally located let.
Buyers should be aware of material drawbacks: the plot is small with on-street permit parking only, the neighbourhood records above-average crime and higher area deprivation, and some external timber and porch features show cosmetic age that will benefit from updating. Broadband and mobile coverage vary locally (standard 8 Mbps reported; ultrafast available). Overall, the house is liveable now but offers straightforward scope for cosmetic improvement to increase comfort or rental yield.
2 bedroom property for sale in Mitre Street, Cheltenham, Gloucestershire, GL53 — £280,000 • 2 bed • 1 bath • 664 ft²
3 bedroom terraced house for sale in All Saints Road, Cheltenham, GL52 — £375,000 • 3 bed • 2 bath • 2108 ft²
3 bedroom terraced house for sale in Upper Bath Street, Cheltenham, Gloucestershire, GL50 — £395,000 • 3 bed • 2 bath • 874 ft²
4 bedroom terraced house for sale in Compton Road, Cheltenham, GL51 — £250,000 • 4 bed • 1 bath • 879 ft²
3 bedroom end of terrace house for sale in Mitre Street, Cheltenham, Gloucestershire, GL53 — £325,000 • 3 bed • 2 bath • 1283 ft²
2 bedroom house for sale in St Annes Terrace, Cheltenham, GL52 6AL, GL52 — £399,000 • 2 bed • 1 bath • 1133 ft²






































































