SE9 3NS - 4 bedroom semidetached house for sale in Sidcup Road, Londo…

View on Property Piper

4 bedroom semi-detached house for sale in Sidcup Road, London, SE9 3NS, SE9

Summary - 760 SIDCUP ROAD LONDON SE9 3NS

4 bed 1 bath Semi-Detached

**Standout Features:**
- Four-bedroom semi-detached house
- Spacious corner plot with a large rear garden
- Ample off-street parking with a detached garage
- Two flexible reception rooms and a large kitchen with garden access
- Potential for modernisation and personalisation
- Convenient location near schools, shops, and transport links

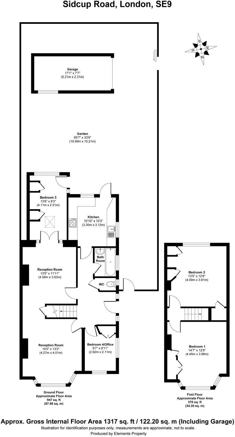
This generous four-bedroom semi-detached home, located on a sought-after corner plot in SE9, presents an excellent opportunity for families and investors alike. With a guide price of £550,000 - £600,000, this property boasts considerable off-street parking and a substantial rear garden ideal for outdoor entertaining and relaxation. The exterior's charming bay windows and solid brickwork exude curb appeal, while the spacious interior features two inviting reception rooms and a large kitchen that flows directly into the garden.

Upstairs, you'll discover two well-sized double bedrooms with abundant natural light, alongside two additional bedrooms on the ground floor, providing flexible living options for guests or a home office. While the property requires renovation to truly shine, its large footprint and desirable location near quality schools and local amenities ensure great potential for future enhancement. Don’t miss this chance to create your dream home in a thriving community!

Property Details

Brochure Descriptions

Image Descriptions

Floorplan Description

Rooms

Textual Property Features

Detected Visual Features

EPC Details

Nearby Schools

Nearest Bars And Restaurants

,,,,}

Nearest General Shops

,,}

Nearest Grocery shops

,,}

Nearest Supermarkets

,,}

Nearest Religious buildings

,,}

Nearest Medical buildings

,,,}

Nearest Airports

,,}

Nearest Leisure Facilities

,,,,}

Nearest Tourist attractions

,,}

Nearest Train stations

,,,,}

Nearest Bus stations and stops

,,,,}

Nearest Hotels

,,}

Tags

Local Market Stats

AirBnB Data

Similar Properties

Meta

High Res Images

Compatible Images

Low res Images

Thumbnails

Raw Images

High Res Floorplan Images

Compatible Floorplan Images

Low res Floorplan Images

FloorplanImages Thumbnail

Raw Floorplan Images