Spacious family living with large gardens and garages, ripe for updating.
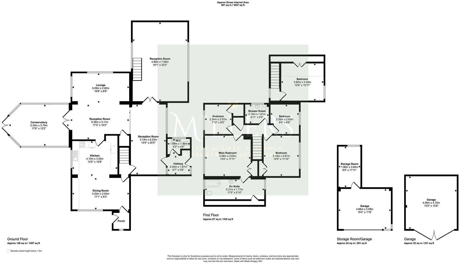
Five bedrooms with principal en-suite and separate shower room
Four reception rooms plus conservatory and flexible room layout
Very large plot with mature lawns, greenhouse and patio
Two double garages, workshop/office and extensive driveway parking
Countryside views and village-edge location, approx ten miles to coast
Needs renovation and updating throughout; cosmetic and systems likely required
Oil-fired boiler heating; double glazing installed before 2002, EPC E
No onward chain but council tax banding is above average
Set on the edge of Felmingham village, this substantial five-bedroom detached home sits within very large grounds and enjoys far-reaching countryside views. The house offers flexible accommodation across two storeys, including four reception rooms, a conservatory, and a generous kitchen/diner — ideal for family living and entertaining. Two double garages, a separate workshop/office and ample driveway parking add practical value for vehicles and hobbies.
The property is liveable but in need of renovation and modernisation, giving a buyer scope to personalise finishes and reconfigure spaces. Heating is by oil-fired boiler with radiators and double glazing was installed before 2002; the EPC is rated E. Important practical points: the plot and mature gardens will require regular maintenance and external landscaping, and the council tax banding is above average.
With no onward chain and a large plot, this home will suit a growing family wanting space and rural outlooks, or a buyer seeking refurbishment potential close to North Norfolk’s coast. Early viewing is recommended to appreciate the scale of the accommodation, the conservatory and the extensive outdoor space.
4 bedroom detached house for sale in Aylsham Road, Felmingham, NR28 — £550,000 • 4 bed • 2 bath • 2088 ft²
3 bedroom semi-detached house for sale in Hall Road, Felmingham, NR28 — £475,000 • 3 bed • 2 bath • 1321 ft²
3 bedroom detached bungalow for sale in Sharon Close, Felmingham, North Walsham, NR28 — £320,000 • 3 bed • 1 bath • 858 ft²
2 bedroom semi-detached house for sale in Church Road, Felmingham, North Walsham, NR28 — £180,000 • 2 bed • 1 bath • 581 ft²
5 bedroom character property for sale in Cromer Road, North Walsham, NR28 — £725,000 • 5 bed • 3 bath • 3000 ft²
3 bedroom bungalow for sale in Taverham Road, Felthorpe, Norwich, Norfolk, NR10 — £290,000 • 3 bed • 1 bath • 909 ft²


































































































































