**Standout Features:**
- Bright and spacious two-bedroom terraced house in a quiet cul-de-sac.
- Eat-in kitchen with access to a low-maintenance rear garden.
- Off-road parking with a designated driveway.
- Centrally located near Hastings Town Centre and the seafront.
- No onward chain, ideal for first-time buyers.
- Excellent mobile signal and fast broadband speeds.
**Concerns:**
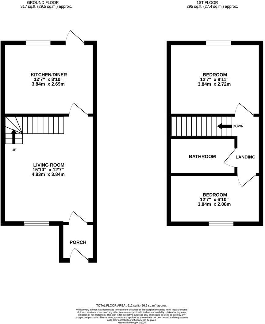
- Size is on the smaller side (612 sq ft).
- Area has above-average crime rates and is considered deprived.
This charming two-bedroom terraced house at Becket Close offers a comfortable and welcoming atmosphere in the heart of Hastings. Ideal for first-time buyers or small families, it features a bright living room, a modern eat-in kitchen with integrated appliances, and two generous double bedrooms on the upper floor. Enjoy the convenience of a low-maintenance south-westerly garden, perfect for al-fresco dining and soaking in the sun. With off-road parking and a location just a short walk from the seafront, Alexandra Park, and shopping amenities, this home is not just a place to live, but a lifestyle opportunity.
Despite the cozy dimensions and potential concerns regarding local crime, the property is chain-free, allowing for a smooth transition into your new home. With future renovation potential and ample storage in the fully boarded loft, this property invites you to envision it as your future sanctuary. Don't miss out on this exclusive opportunity in a sought-after location. Act fast to secure your first home!
2 bedroom terraced house for sale in Saunders Close, Hastings, TN34 — £220,000 • 2 bed • 1 bath • 621 ft²
2 bedroom semi-detached house for sale in Beckett Mews, Hastings, TN34 — £250,000 • 2 bed • 1 bath • 628 ft²
2 bedroom end of terrace house for sale in Horseshoe Close, St. Leonards-On-Sea, TN38 — £262,500 • 2 bed • 1 bath • 633 ft²
3 bedroom terraced house for sale in Sheerwater Terrace, Hastings, TN34 — £290,000 • 3 bed • 1 bath • 754 ft²
2 bedroom terraced house for sale in St Andrews Villas, Stonefield Road, Hastings, TN34 — £254,000 • 2 bed • 1 bath • 776 ft²
2 bedroom terraced house for sale in St Georges Road, Hastings, TN34 — £225,000 • 2 bed • 1 bath • 548 ft²


















































