**Standout Features:**
- Spacious four double bedrooms
- Ample off-street parking and detached double garage
- Beautifully presented with modern fixtures
- Generous private and enclosed gardens
- Ideal for family living in a sought-after location
- Chain-free sale
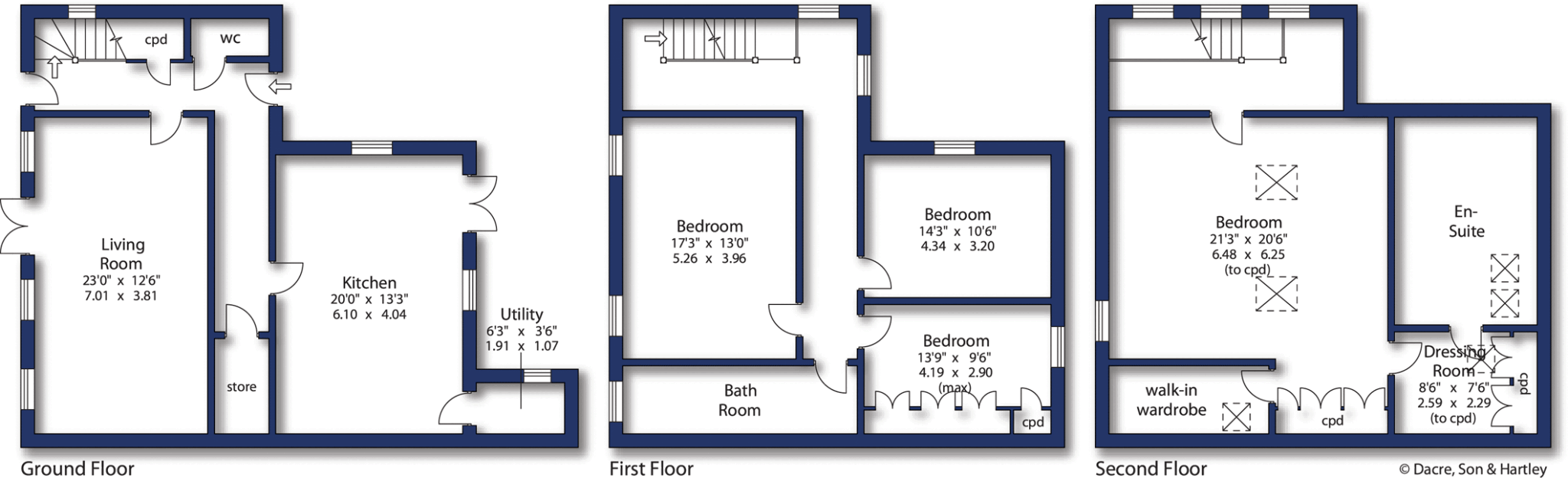
This exceptional Victorian stone townhouse is an inviting family home situated in a tranquil, sought-after location, just minutes from Skipton. With four spacious double bedrooms spread over three floors, this property boasts both comfort and style. The modern, open-plan kitchen is a chef’s dream, featuring sleek quartz worktops, an array of integrated appliances, and a bespoke bar—perfect for entertaining. Large windows flood the living room with natural light, while stylish elements like a contemporary gas fire and a fitted aquarium create a welcoming ambiance.
The master suite on the second floor is a true retreat, complete with its own dressing area and a luxurious en-suite bathroom, making it an ideal sanctuary for relaxation. The detached double garage and ample parking ensure convenience for families, while the expansive, privately enclosed gardens provide ample space for children to play or for gardening enthusiasts to indulge their passions.
Though the property shows no signs of urgency for maintenance, buyers should note the communal septic tank drainage and that tree preservation orders are in place for surrounding trees. With no onward chain, this charming family home presents an exciting opportunity. Don’t miss the chance to secure a peaceful lifestyle amid the picturesque countryside, where every day feels like a retreat. Act quickly to make this exquisite property your own!
4 bedroom detached house for sale in Westwood, Carleton, Skipton, North Yorkshire, BD23 — £515,000 • 4 bed • 2 bath • 1267 ft²
4 bedroom detached house for sale in Spencer Close, Skipton, BD23 — £425,000 • 4 bed • 2 bath • 1140 ft²
4 bedroom terraced house for sale in 1 The Stables, Carla Beck Lane, Carleton, Skipton, BD23 3BU, BD23 — £495,000 • 4 bed • 2 bath • 1499 ft²
5 bedroom detached house for sale in 12 Overdale Grange, Skipton, BD23 6AG, BD23 — £870,000 • 5 bed • 3 bath • 3200 ft²
4 bedroom semi-detached house for sale in 15 Ryemoor Lane, Skipton BD23 2FH, BD23 — £399,950 • 4 bed • 1 bath • 930 ft²
5 bedroom detached house for sale in Close House Road, Skipton, North Yorkshire, BD23 — £675,000 • 5 bed • 4 bath • 1509 ft²


















































































































