PA28 6RY - 9 bedroom hotel for sale in Airds, Carradale East, Campbelt…

View on Property Piper

9 bedroom hotel for sale in Airds, Carradale East, Campbeltown, Argyll and Bute, PA28

Summary - ASHBANK HOTEL, AIRDS PA28 6RY

9 bed 1 bath Hotel

**Standout Features:**
- Traditional Scottish hotel with excellent reputation
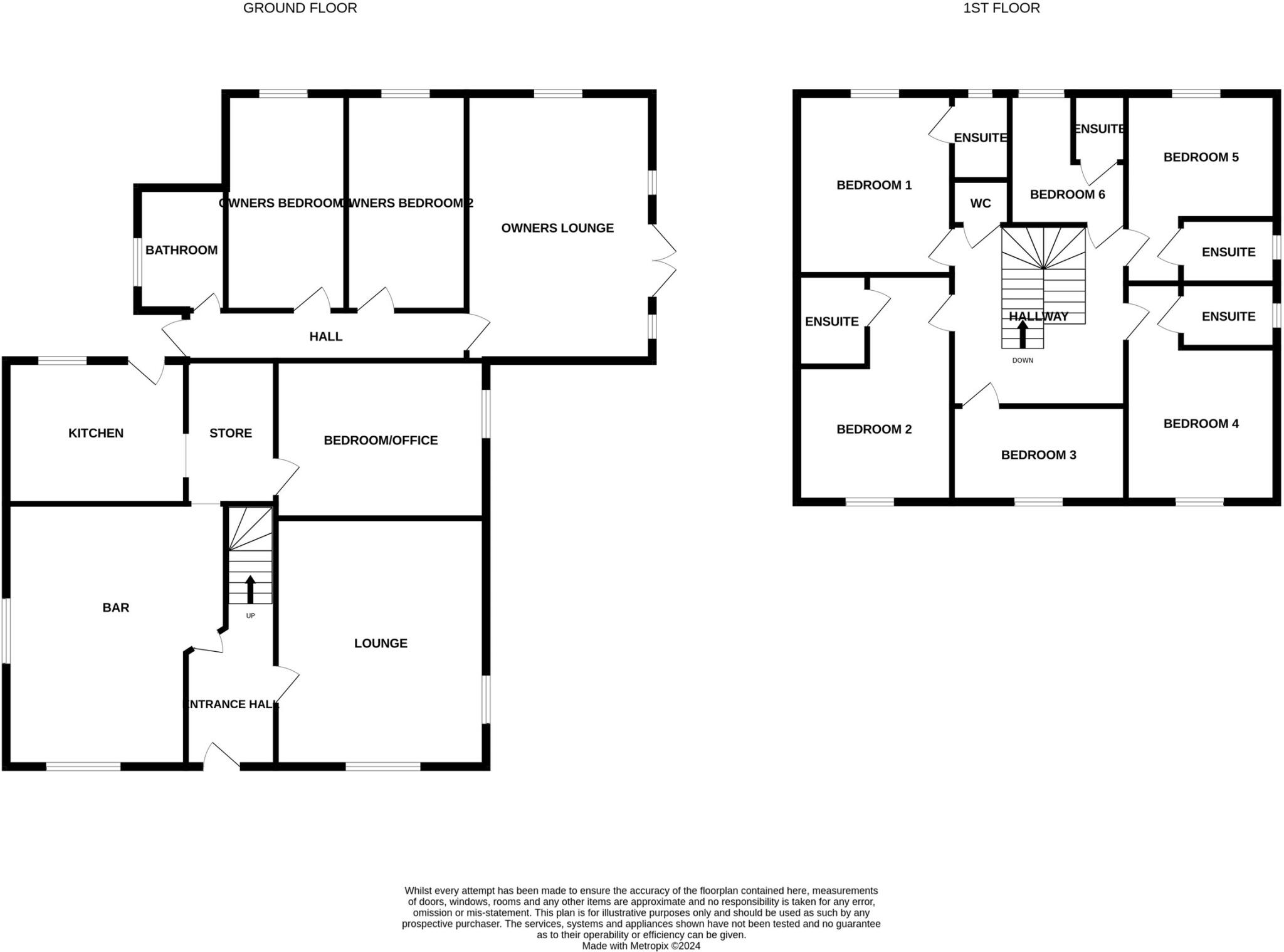
- 5 en-suite letting rooms, plus 2/3 bedroom owner’s accommodation
- Immaculate bar and cozy lounge area
- Large beer garden, perfect for summer gatherings
- Stunning location on the East Kintyre Peninsula
- Average deterioration level; generally good condition but requires ongoing maintenance
- Freehold status, chain-free selling point

**Summary:**
Presenting the Ashbank Hotel, a substantial freehold property that perfectly embodies the charm of traditional Scottish hospitality. With five en-suite letting rooms and a cozy owner's accommodation, this turnkey business yields great income potential from both accommodation and bar services. Located in scenic Carradale, the hotel enjoys stunning views and proximity to a natural harbor, golf course, and popular beaches—ideal for attracting visitors year-round. The hotel is well-regarded among locals and tourists, ensuring a steady clientele.

The inviting bar area and large beer garden offer a warm atmosphere that promotes social gatherings, while the well-equipped commercial kitchen supports your operational needs. Although the property is presented in good condition, it does require ongoing upkeep which is common in older establishments. This presents an exceptional opportunity for investors or first-time buyers looking to enter the hospitality market in a picturesque setting. Seize this opportunity to create a thriving business and enjoy the tranquility and beauty of the Kintyre Peninsula. Don't miss out; properties like this in such a desirable location won't last long!

Property Details

Brochure Descriptions

Image Descriptions

Floorplan Description

Rooms

Textual Property Features

Detected Visual Features

Nearest Bars And Restaurants

,,,,}

Nearest General Shops

,,}

Nearest Grocery shops

,,}

Nearest Supermarkets

,,}

Nearest Religious buildings

,,}

Nearest Medical buildings

,,,}

Nearest Leisure Facilities

,,,,}

Nearest Tourist attractions

,,}

Nearest Bus stations and stops

,,,,}

Nearest Hotels

,,}

Tags

Local Market Stats

AirBnB Data

Similar Properties

Meta

High Res Images

Compatible Images

Low res Images

Thumbnails

Raw Images

High Res Floorplan Images

Compatible Floorplan Images

Low res Floorplan Images

FloorplanImages Thumbnail

Raw Floorplan Images