Modern, move-ready riverside home with private mooring and garage, offered chain free..
Riverside townhouse with private 30ft boat mooring
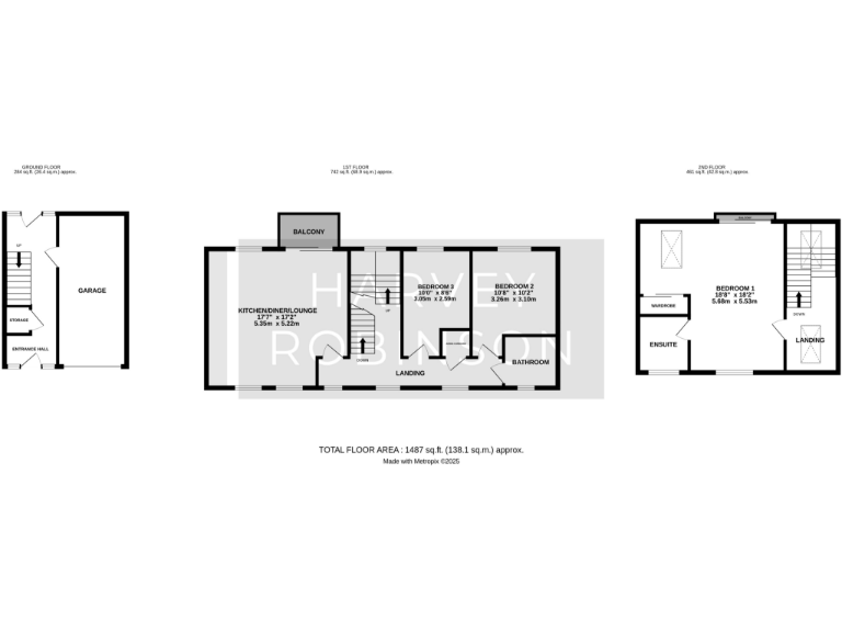
A riverside townhouse arranged over three floors, this recently modernised home offers a low-maintenance, waterfront lifestyle ideal for downsizers or those retiring to water views. The principal bedroom occupies the whole top floor, with fitted wardrobes and an en-suite; the thoughtful layout keeps living space on the first floor to maximise the river outlook.
The open-plan lounge/kitchen/diner was re-fitted in 2019 and opens onto a balcony overlooking the River Great Ouse, while a private terrace provides direct riverside seating and access to a 30ft boat mooring—appealing to boating enthusiasts or anyone who values immediate waterside access. There is a single garage plus two parking spaces for guests and convenience.
Practically, the house is leasehold with 122 years remaining and average annual service charges of about £1,214.63; separate management companies administer the moorings and communal lake/walkways, and charges for these were listed in 2024. The property is offered chain free and has been updated by the current owners, including a 2023 bathroom and a 2023 boiler.
Buyers should note the site has a medium flood risk and that it is leasehold — check the lease length, costs and any proposed lease extension (owners report discussions about extending to 999 years). For anyone seeking a modern, low-upkeep riverside home with private mooring and easy access to St Neots amenities, this presents a rare, move-ready option.
4 bedroom town house for sale in Wren Walk, Eynesbury, St. Neots, PE19 — £400,000 • 4 bed • 3 bath • 1292 ft²
4 bedroom town house for sale in Wren Walk, Eynesbury, St. Neots, PE19 — £375,000 • 4 bed • 3 bath • 1335 ft²
3 bedroom town house for sale in River Terrace, St Neots, Cambridgeshire, PE19 — £450,000 • 3 bed • 2 bath • 1219 ft²
3 bedroom terraced house for sale in River Terrace, St. Neots, PE19 — £450,000 • 3 bed • 1 bath • 1165 ft²
4 bedroom town house for sale in Bowers Mill, Fishers Yard, St. Neots, Cambridgeshire, PE19 2AG, PE19 — £450,000 • 4 bed • 2 bath • 1379 ft²
5 bedroom town house for sale in Skipper Way, Little Paxton, St. Neots, PE19 — £389,995 • 5 bed • 2 bath • 1410 ft²






























































































