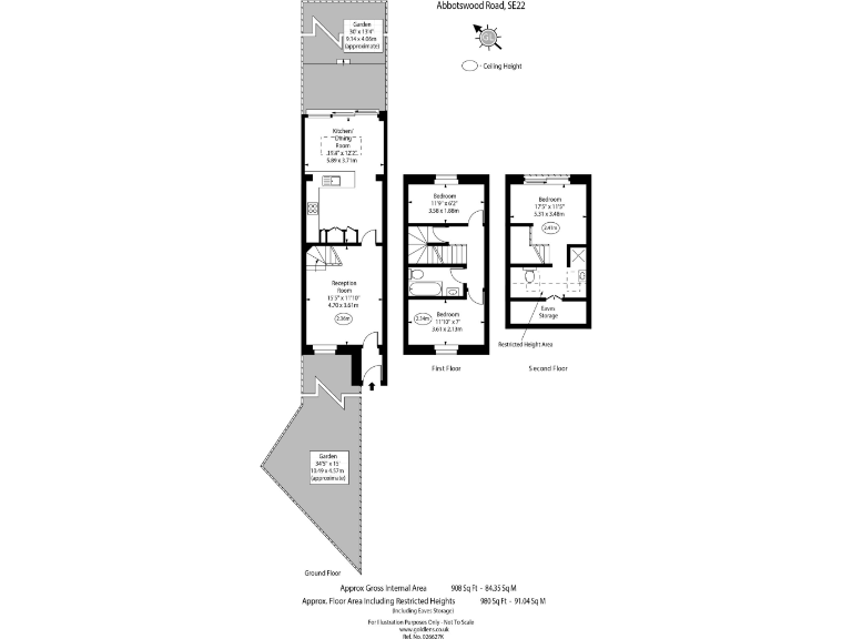
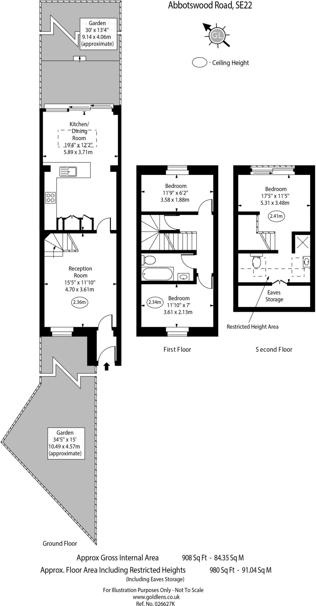
**Standout Features:**
- Freehold terraced property with 3 bedrooms and 2 bathrooms
- Spacious loft conversion with an en-suite, ideal for privacy
- Modern open-plan kitchen with a large island, excellent for entertaining
- Beautifully landscaped garden, perfect for outdoor gatherings
- Off-street parking and bike storage
- Located near East Dulwich Station with superb transport links to central London
**Concerns:**
- Area safety has a crime rate above average
- Property maintenance details not explicitly mentioned
Discover your dream home in this stunning 3-bedroom terraced property located in the vibrant heart of East Dulwich. With a freehold tenure and a total square footage of 908, this spacious residence boasts a modern, open-plan kitchen complete with stylish pendant lighting, herringbone flooring, and a generous island—perfect for hosting family and friends. Enjoy the luxury of a beautifully landscaped garden, ideal for summer barbecues, plus the convenience of off-street parking and bike storage.
The loft conversion provides a serene retreat featuring a spacious double bedroom and a spa-like en-suite, along with two additional large double bedrooms on the first floor and a modern family bathroom equipped with underfloor heating. This home is situated within walking distance of excellent schools, including the highly rated Charter School catchment, making it perfect for families.
Located close to East Dulwich Station, you’ll have easy access to local amenities and trendy spots along Lordship Lane. With its combination of modern features, suburban charm, and urban convenience, this property offers exceptional potential. But don't wait too long; homes of this quality are certain to attract attention quickly!
4 bedroom end of terrace house for sale in Abbotswood Road, London, SE22 — £975,000 • 4 bed • 3 bath • 1426 ft²
2 bedroom terraced house for sale in St. Francis Road, East Dulwich, SE22 — £895,000 • 2 bed • 2 bath • 865 ft²
4 bedroom end of terrace house for sale in Abbotswood Road, East Dulwich, SE22 — £925,000 • 4 bed • 2 bath • 1200 ft²
4 bedroom semi-detached house for sale in Burrow Road, East Dulwich, SE22 — £930,000 • 4 bed • 2 bath • 1247 ft²
3 bedroom semi-detached house for sale in Abbotswood Road, London, SE22 — £750,000 • 3 bed • 1 bath • 800 ft²
3 bedroom maisonette for sale in East Dulwich Grove, London, SE22 — £600,000 • 3 bed • 1 bath • 924 ft²










































