Smart, affordable two-bed close to transport and schools.
2 double bedrooms, one with private balcony
Private rear garden ~6.13 x 8.80 m, good for a maisonette
Long lease ~163 years; no service charge or ground rent
Compact internal size: 611 sq ft, modest room proportions
Double glazing fitted (post-2002) and mains gas central heating
Mid-20th century build; some areas need modernisation
Cavity walls likely uninsulated — potential energy upgrade needed
Excellent transport links to Romford town centre and Elizabeth Line
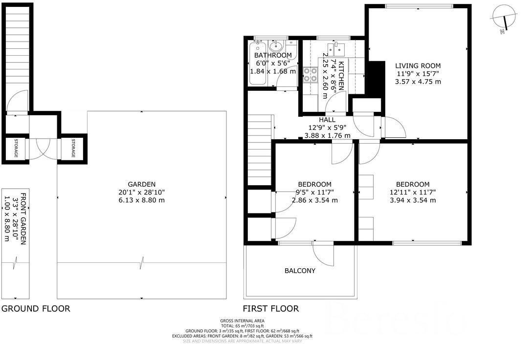
This two-bedroom first-floor maisonette offers a sensible, affordable step onto the property ladder in a quiet cul-de-sac close to Romford town centre. The layout gives a comfortable living room, two double bedrooms (one with a private balcony) and a practical kitchen and bathroom — all arranged over a compact 611 sq ft footprint.
Outside, the flat benefits from a private front garden and a rear garden of approximately 6.13 x 8.80 m — generous for a maisonette and useful for children, potted gardening or outdoor entertaining. Double glazing and mains gas central heating are already in place, and the long lease (about 163 years) plus no service charge or ground rent reduce ongoing ownership costs.
Location is a clear advantage for commuters and young families: low local crime, fast broadband, excellent mobile signal and easy access to Romford town centre and the Elizabeth Line/overground station. Several well-regarded primary and secondary schools are close by, adding practical family appeal.
Buyers should note the property sits in a mid-20th century terrace and will benefit from updating in places — the façade and some internal areas show mid-century fittings and the garden-facing exterior needs modernisation. Cavity walls were built without added insulation (assumed), so there is scope—and cost—for improving thermal efficiency. Overall this is a pragmatic, good-value home with immediate usability and clear potential for cosmetic and energy-efficiency improvements.
3 bedroom maisonette for sale in Esher Avenue, Romford, RM7 9EA, RM7 — £325,000 • 3 bed • 1 bath • 797 ft²
2 bedroom maisonette for sale in Lowlands Gardens, Romford, RM7 — £300,000 • 2 bed • 1 bath • 611 ft²
2 bedroom maisonette for sale in Brockley Crescent, Romford, RM5 — £320,000 • 2 bed • 1 bath • 809 ft²
2 bedroom maisonette for sale in Fairview Parade, Romford, RM7 7AD, RM7 — £260,000 • 2 bed • 1 bath • 878 ft²
2 bedroom maisonette for sale in Mawney Close, Romford, RM7 — £325,000 • 2 bed • 1 bath • 773 ft²
2 bedroom maisonette for sale in Marlborough Road, Romford, RM7 — £260,000 • 2 bed • 1 bath • 584 ft²


































































