Double-fronted ground floor with broad high-street presence
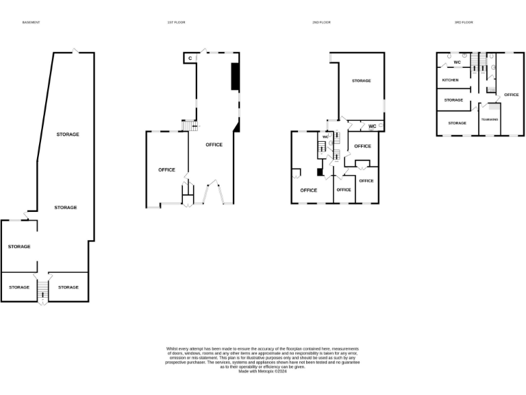
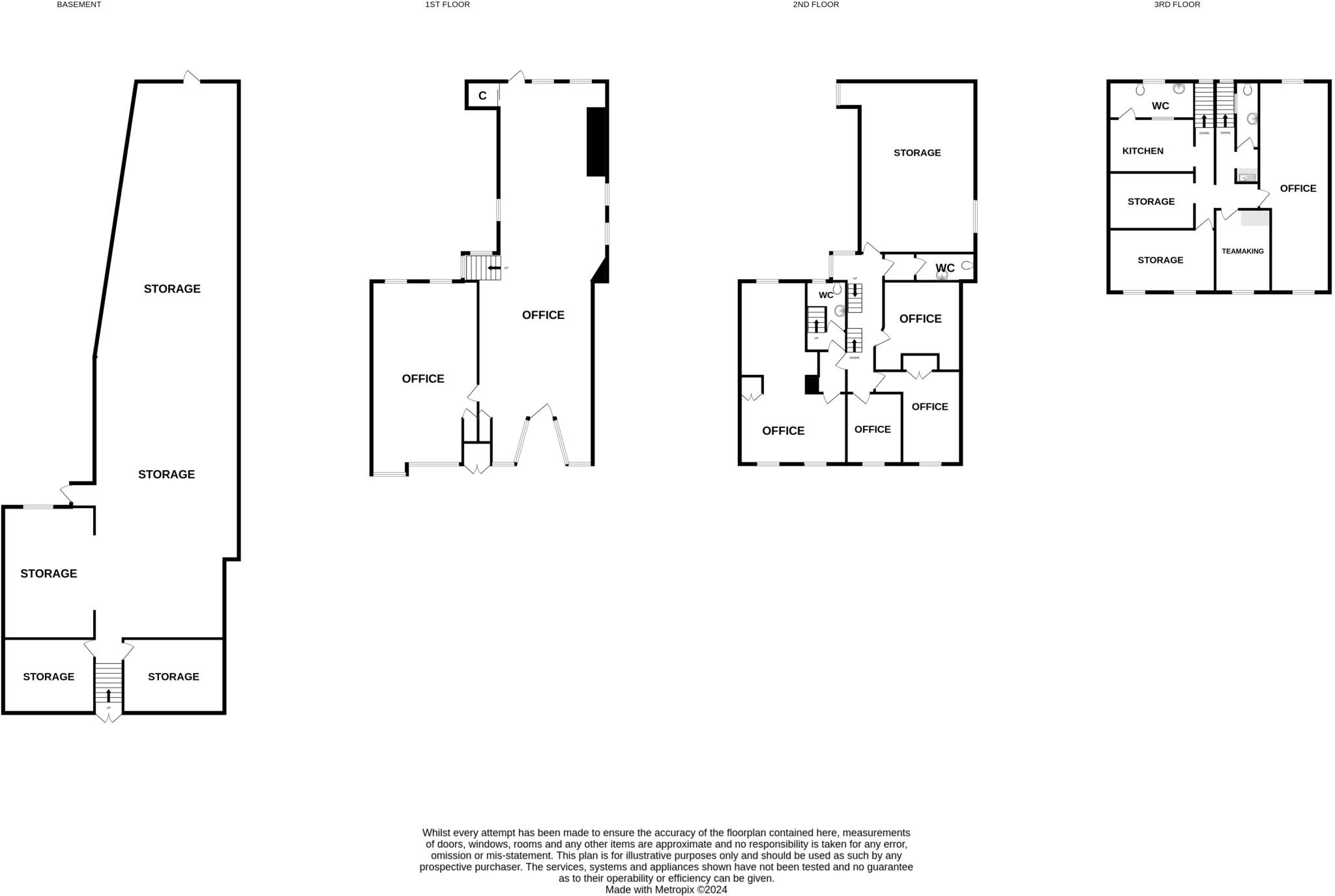
A substantial double-fronted retail property occupying 5,498 sq ft across four floors in the heart of St Ives. The building offers a wide ground-floor frontage, extensive basement storage, and two upper floors currently used as studios or offices — well suited to a flagship shop, gallery or mixed commercial use that benefits from heavy tourist footfall.
The interior is dated in places with mid-20th-century suspended ceilings and fluorescent lighting; the property will require refurbishment to modern retail standards. Services are understood to be connected but untested and the building’s stone walls are likely uninsulated, so factor in fit-out and energy-efficiency works. EPC rating D (84) is provided.
Practical considerations: the marketing information includes both “freehold available” and a price stated as a freehold sale, while the recorded tenure field notes Leasehold — buyers must confirm legal title and tenure. There is a medium flood risk and above-average local crime; the wider area is described as deprived with an ageing population, which affects non-tourist footfall outside peak season.
This property suits investors or businesses looking for a prominent St Ives presence and substantial back-of-house space. Strong summer trading potential is balanced by seasonal demand, renovation costs and tenure/title queries; buyers should commission surveys, check rates liability, and confirm services and legal status before exchange.
High street retail property for sale in High Street, St. Ives, Cornwall, TR26 1RT, TR26 — POA • 1 bed • 1 bath • 1593 ft²
Commercial property for sale in Tregenna Place, St. Ives, TR26 — £385,000 • 1 bed • 1 bath • 1348 ft²
2 bedroom apartment for sale in Tregenna Hill, St. Ives, Cornwall, TR26 — £325,000 • 2 bed • 1 bath • 1493 ft²
2 bedroom apartment for sale in Tregenna Hill, St Ives, Cornwall, TR26 — £450,000 • 2 bed • 1 bath • 2092 ft²
1 bedroom end of terrace house for sale in Bedford Road, St. Ives, Cornwall, TR26 — £375,000 • 1 bed • 2 bath • 1092 ft²
2 bedroom terraced house for sale in Street-An-Pol, ST. IVES, Cornwall, TR26 — £250,000 • 2 bed • 1 bath • 969 ft²


































































