Light-filled three-bedroom with private garden and two parking spaces close to schools.
Open-plan kitchen and dining room with separate sitting room
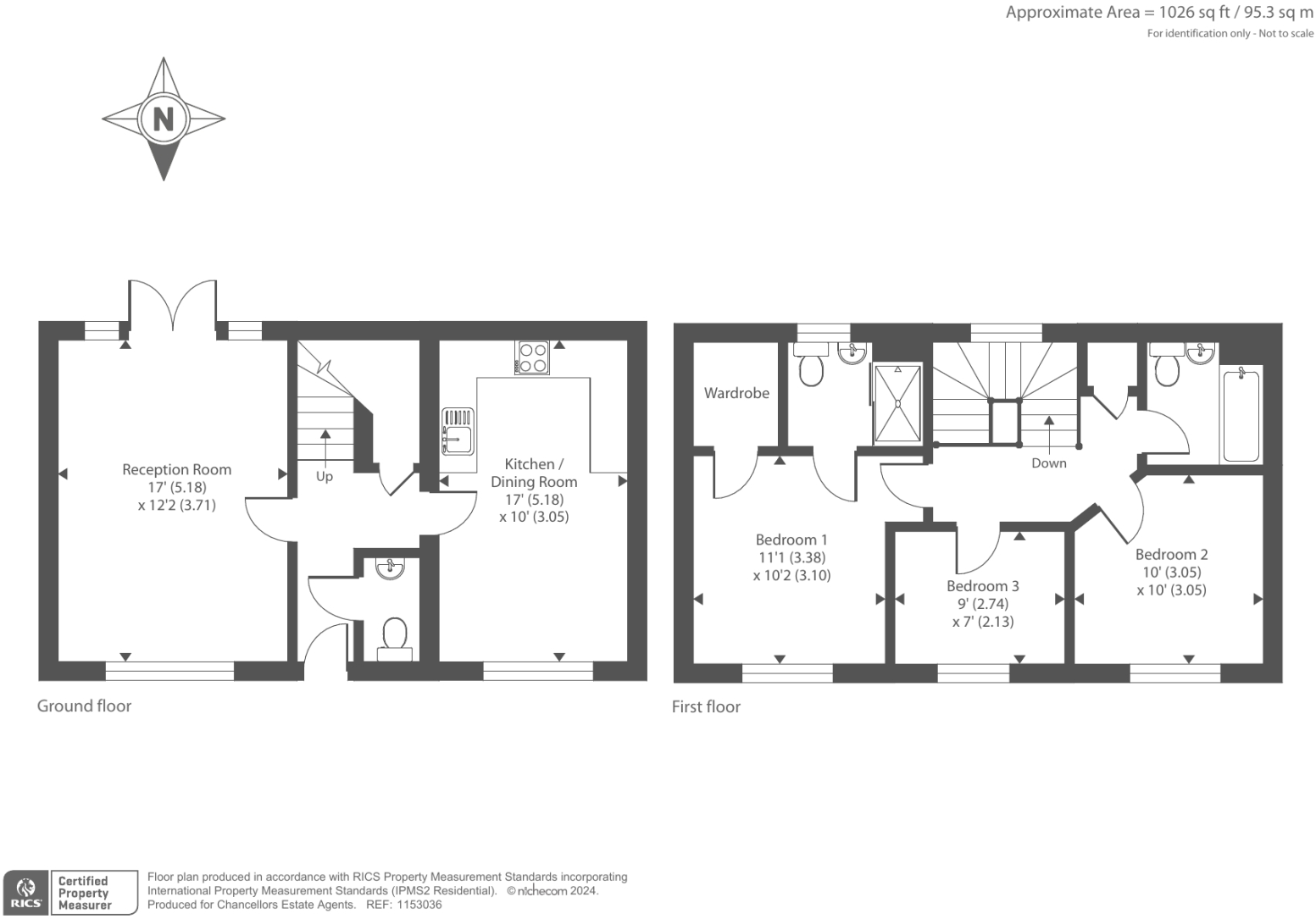
This well-presented three-bedroom semi-detached house on Kennet Island offers practical, family-focused accommodation in a modern development. The ground floor features an open-plan kitchen/dining room and a separate sitting room, plus a convenient ground-floor WC. Upstairs the principal bedroom has an ensuite shower and a walk-in wardrobe, alongside two further bedrooms and a family bathroom.
Outside there is a private, low-maintenance garden with a sun canopy and off-street parking for two cars — useful for families with multiple drivers. Built between 2007 and 2011, the home benefits from double glazing, mains gas central heating with a boiler and radiators, fast broadband and excellent mobile signal, so it's ready for everyday family life and home-working.
Be aware of some local factors: the area has higher-than-average crime levels and sits within an area of deprivation, and the plot is relatively small. The house is average-sized internally (about 1,022 sq ft) but presents a sensible, comfortable layout; it will suit buyers seeking a ready-to-live-in family home rather than a large garden or expansive grounds.
Nearby schools include several rated Good, and local amenities are within easy reach, including shops, healthcare and public transport links. The property is freehold with affordable council tax and no local flooding risk — practical positives for long-term family ownership.
3 bedroom semi-detached house for sale in Padworth Avenue, Reading, Berkshire, RG2 — £500,000 • 3 bed • 3 bath • 980 ft²
3 bedroom semi-detached house for sale in Longships Way, Reading, RG2 — £500,000 • 3 bed • 2 bath • 1004 ft²
2 bedroom semi-detached house for sale in Puffin Way, Reading, Berkshire, RG2 — £375,000 • 2 bed • 2 bath • 657 ft²
2 bedroom end of terrace house for sale in Reading, Berkshire, RG2 — £350,000 • 2 bed • 1 bath • 664 ft²
4 bedroom town house for sale in Midgham Way, Reading, Berkshire, RG2 — £500,000 • 4 bed • 2 bath • 1213 ft²
3 bedroom town house for sale in Midgham Way, Reading, Berkshire, RG2 — £455,000 • 3 bed • 2 bath • 1099 ft²










































































