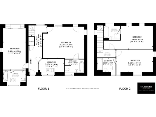
### Standout Features:
- **Type**: Detached house with 4 bedrooms and 4 bathrooms
- **Space**: Over 1700 sq ft with planning permission to extend
- **Location**: Sought-after village of Hetton, within Yorkshire Dales National Park
- **Outdoor Areas**: Large fore-garden and 'Yarden' area, ample off-street parking
- **Access**: Excellent bus route, only 10 minutes to Skipton
- **Condition**: Requires renovation, currently a 4-bedroom annex
### Summary:
Discover the potential of this charming stone-built detached house in the idyllic village of Hetton, nestled within the breathtaking Yorkshire Dales National Park. This property spans over 1700 square feet, currently set up as a 4-bedroom annex but brimming with possibilities for refurbishment into a comfortable family home. The layout includes spacious ground floor living options with potential for a large open-plan kitchen, dining, and living area, plus essential utility spaces. The upper level features two en-suite bedrooms, with reconfiguration options available to create additional space as needed.
With planning permission already secured to add a second floor—a development that could yield a luxurious principal suite—the growth potential is substantial. The inviting external areas include a picturesque fore-garden and a unique 'Yarden' with tranquil rural views, along with generous parking for multiple vehicles. Perfectly located just 10 minutes from the vibrant market town of Skipton and with great access to scenic walks, this property is a rare opportunity for customization and personal design. Don’t miss your chance to make it your own!
5 bedroom barn conversion for sale in Bull Lane, Hetton, Skipton, North Yorkshire, BD23 — £1,150,000 • 5 bed • 3 bath • 2916 ft²
5 bedroom detached house for sale in Hetton, Skipton, North Yorkshire, BD23 — £1,195,000 • 5 bed • 3 bath • 2655 ft²
4 bedroom detached house for sale in Lime Bank, Back Lane, Hetton, BD23 6LX, BD23 — £549,950 • 4 bed • 1 bath
4 bedroom barn conversion for sale in Back Lane, Hetton, Skipton, North Yorkshire, BD23 — £945,000 • 4 bed • 2 bath • 2625 ft²
2 bedroom bungalow for sale in Hetton, Skipton, North Yorkshire, BD23 — £550,000 • 2 bed • 1 bath • 1356 ft²
5 bedroom detached house for sale in Old Hall Laithe & Barn on The Green, Kilnsey, Skipton, BD23 — £850,000 • 5 bed • 3 bath • 2700 ft²






































































