**Standout Features:**
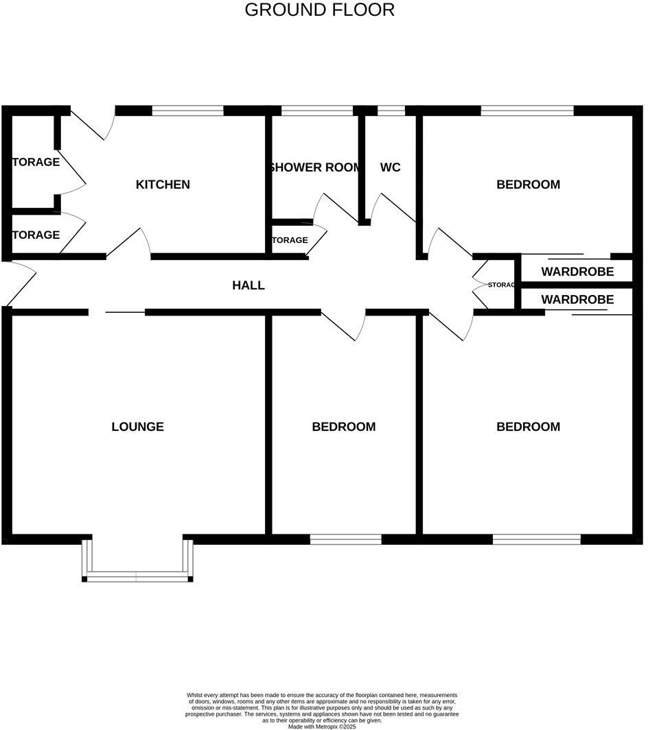
- Ground-floor flat with three bedrooms
- No onward chain, enabling quick occupancy
- Garage and communal gardens for added convenience
- Modern kitchen with integrated appliances
- Convenient location near the City Centre and local amenities
This spacious ground-floor flat offers an inviting blend of comfort and convenience, ideally situated just moments from the City Centre. Boasting three well-sized bedrooms, a modern kitchen with integrated appliances, a cozy lounge, and practical shower and WC facilities, this property is perfect for first-time buyers or savvy investors looking for rental potential. The secure intercom entry ensures privacy, while its double glazing and gas heating promise efficient living throughout the seasons.
The flat also features a single garage and access to communal gardens, enhancing its appeal with additional outdoor space and parking. With 161 years remaining on the lease and reasonable service charges, this property represents an excellent investment opportunity in a cosmopolitan neighborhood. Local amenities, schools, and transportation links are all within easy reach, making this not just a home, but a lifestyle choice—don't miss out on this chance to create your ideal living situation in this vibrant area of Norwich.











































