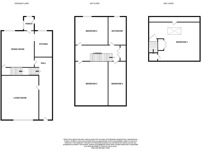
Character-filled mid-terrace with garage and cellar, ready for sympathetic modernisation..
- Four bedrooms across three floors, including top-floor bedroom with eaves storage
- Good-sized lounge and separate dining room with period features
- Two cellar rooms offering generous storage and utility space
- Garage to the rear with inspection pit; useful for storage or hobbyists
- Fully fitted kitchen but fixtures dated; modernisation advised
- Single family bathroom; may be tight for four-bedroom household
- EPC Grade E and assumed lack of wall insulation; efficiency upgrades needed
- Local area records very high crime; consider security measures
This Victorian mid-terrace on Somerset Road offers generous living space across three floors — including a good-sized lounge, separate dining room and two-cellar rooms — ideal for families wanting period character and practical storage. The property retains original features such as coving, ceiling roses and a feature fireplace which give immediate charm and can be enhanced with sympathetic updating.
Accommodation includes four bedrooms (the fourth on the top floor with eaves storage), a family bathroom with separate shower, and a fully fitted kitchen. A rear garden and garage with inspection pit provide useful outdoor space and secure parking/workspace. The house is freehold and totals about 1,454 sq ft, suitable for households needing flexible room layouts.
The home does require some modernisation: fittings and fixtures are dated in places and the EPC is grade E. The building fabric is traditional sandstone/limestone construction with assumed lack of wall insulation; updating heating efficiency and cosmetic areas will add value. Note the local area records very high crime levels, so buyers should consider security measures and local crime data before proceeding.
Positioned in central Pudsey, the house benefits from strong transport links, fast broadband and nearby schools (including an Outstanding primary). For families seeking a characterful home to personalise, or buyers aiming to add value through renovation, this property presents clear potential once practical improvements are addressed.
5 bedroom end of terrace house for sale in Cemetery Road, Pudsey, LS28 — £500,000 • 5 bed • 2 bath • 2096 ft²
3 bedroom end of terrace house for sale in Wood Vine Street, Leeds, LS28 — £180,000 • 3 bed • 1 bath • 776 ft²
4 bedroom end of terrace house for sale in Hammerton Street, Pudsey, LS28 — £325,000 • 4 bed • 2 bath • 1163 ft²
2 bedroom end of terrace house for sale in Valley Road, Pudsey, West Yorkshire, LS28 — £260,000 • 2 bed • 1 bath • 872 ft²
4 bedroom terraced house for sale in Glebe Street, Pudsey, LS28 — £300,000 • 4 bed • 1 bath • 961 ft²
3 bedroom terraced house for sale in The Lanes , LS28 7AQ, LS28 — £230,000 • 3 bed • 1 bath • 936 ft²


































































