Vaulted living space with roof garden, garage and fast broadband close to the waterfront.
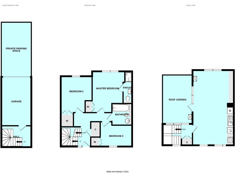
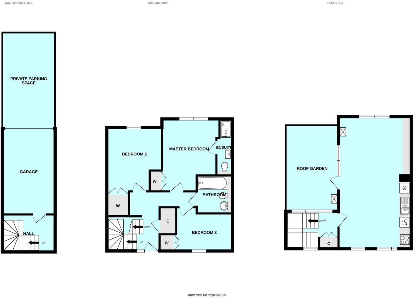
- Spacious open-plan living under a 15–16ft vaulted ceiling with natural light
- Roof garden with open outlook, ideal for outdoor entertaining
- Integral garage plus exclusive 18ft private parking space
- High-spec kitchen: Neff oven, induction hob, dishwasher, Quooker boiling tap
- Three bedrooms; master bedroom with en-suite shower room
- Leasehold: 231 years remaining, ground rent £350, service charge ~£1,959.72
- Heating via community scheme; factor communal running costs
- Located close to waterfront, city centre, schools; area shows high local deprivation
This contemporary townhouse in West Hoe offers bright, modern living across well-planned levels, just a short walk from the Hoe, waterfront and city centre. The living space is dramatic: a large open-plan lounge/diner/kitchen under a 15–16ft vaulted ceiling, complemented by two air-conditioning units, ceiling fans and high-spec integrated appliances.
The property includes three bedrooms (master with en-suite), a generous roof garden with open outlook, an integral garage and an 18ft private parking space. Built-in Sharps wardrobes and quality fittings throughout give a low-maintenance, move-in-ready finish. At about 1,098 sq ft, the layout makes efficient use of space for family living or professionals sharing.
Buyers should note this is a leasehold home with 231 years remaining, an annual ground rent of £350 and an average service charge of £1,959.72. Heating is provided via a community scheme and there are ongoing communal costs to factor into running expenses.
The immediate area offers excellent connectivity, fast broadband and very low recorded crime, and is well placed for local schools and seafront amenities. However, broader statistics indicate a high level of local deprivation and a mixed neighbourhood character (including student areas), which buyers may want to assess in person.
3 bedroom terraced house for sale in Fin Street, Plymouth, PL1 — £325,000 • 3 bed • 2 bath • 10700 ft²
5 bedroom terraced house for sale in The Hoe, Lockyer Street, PL1 — £975,000 • 5 bed • 3 bath • 4749 ft²
4 bedroom semi-detached house for sale in Baylys Road, Oreston, Plymouth, PL9 — £775,000 • 4 bed • 3 bath • 2195 ft²
2 bedroom town house for sale in Willoughby Way, Plymouth, PL1 — £240,000 • 2 bed • 2 bath • 872 ft²
4 bedroom semi-detached house for sale in Barton Road Turnchapel, Plymouth., PL9 — £590,000 • 4 bed • 3 bath • 2054 ft²
3 bedroom end of terrace house for sale in Custom House Lane, The Hoe, PL1 — £650,000 • 3 bed • 2 bath • 1200 ft²






















































































