Move straight in to modern interiors, garden and strong connectivity for new buyers.
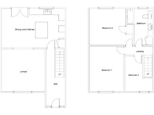
Three bedrooms across two floors, freshly renovated interior
Freehold terraced house, approx. 742 sq ft (small overall size)
Modern open-plan kitchen with island and French doors to garden
Single family bathroom with electric shower over bath
Small rear garden with woodland views, lawn and patio areas
Excellent mobile signal and fast broadband for home working
Located in a very deprived area with high local crime rates
Exterior shows mid‑20th century materials; some external maintenance likely
Set in a valleys village, this newly renovated three-bedroom terraced house offers practical living across two floors. The interior is refreshed with laminate and plush carpeting, a modern open-plan kitchen/dining area with an island, and a bright lounge with a bay window. French doors open onto a small but well-kept rear garden with views toward woodland.
The property is freehold and compact at about 742 sq ft, making it economical to run and straightforward to maintain. Connectivity is strong — excellent mobile signal and fast broadband — which supports home working or streaming. The single family bathroom is well laid out with a fitted bath, electric shower and built-in vanity storage.
Buyers should note the setting: the wider area is very deprived with a high local crime rate, and the house sits on a small plot in a post‑war terraced row. The exterior shows mid‑20th century construction and will need routine upkeep; the paved areas and concrete walls may require attention over time. Overall, this is a practical, move‑in ready property suited to first-time buyers or small families seeking modern internal finishes and outdoor space in a valley town.
3 bedroom terraced house for sale in Gladstone Street, Blaina, NP13 — £145,000 • 3 bed • 1 bath
3 bedroom semi-detached house for sale in Sannan Street, ABERBARGOED, CF819BJ, CF81 — £210,000 • 3 bed • 1 bath • 589 ft²
3 bedroom terraced house for sale in Herbert Street, Brithdir, NP24 — £135,000 • 3 bed • 1 bath • 1000 ft²
3 bedroom terraced house for sale in Fflorens Road, Newbridge, NP11 — £219,000 • 3 bed • 2 bath • 905 ft²
3 bedroom terraced house for sale in Woodfield Street, Woodfieldside, NP12 — £199,000 • 3 bed • 1 bath • 775 ft²
3 bedroom terraced house for sale in Station Terrace, Cwm, NP23 — £164,950 • 3 bed • 2 bath • 1066 ft²


















































































