**Standout Features:**
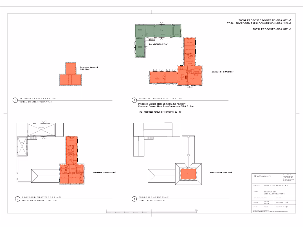
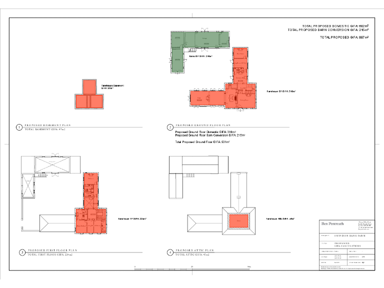
- Existing 4-bedroom stone farmhouse ripe for modernisation or extension
- Two stone barns with planning permission for conversion into a 3400 sq ft dwelling
- Approved plans for a stunning new 7300 sq ft country house with net-zero features
- Expansive 3-acre grounds with breathtaking views over Lower Wharfedale
- Conveniently located near Harrogate with excellent schools and commuting options
**Summary:**
Swindon Bank Farm is a unique development opportunity nestled in the serene countryside near Harrogate. The existing 4-bedroom stone farmhouse presents an excellent canvas for those looking to create their dream home, while the surrounding outbuildings, including two stone barns with extant conversion permissions, open several avenues for expansion or investment. With planning approved for a magnificent new country house designed to be carbon negative, the potential here is extraordinary.
Set in approximately 3 acres of picturesque land, enjoy stunning views and the tranquility of rural life, just a stone's throw from local amenities and transport links. Whether you’re seeking to modernize the current farmhouse into a personal sanctuary or develop a new luxury residence, Swindon Bank Farm offers a remarkable combination of space, charm, and future potential in a highly desirable location. Given the planning permissions in place, properties like this are seldom available—don't miss your chance to explore all that this enchanting estate has to offer!
4 bedroom detached house for sale in New Laithe Farm, Stainland Road, Sowood, Halifax, HX4 — £900,000 • 4 bed • 3 bath • 2192 ft²
3 bedroom detached house for sale in Cone Lane, Silkstone Common, Barnsley, S75 4PT, S75 — £850,000 • 3 bed • 2 bath • 2800 ft²
2 bedroom barn conversion for sale in Cowling Wood, Manor Farm Barns, Burrill, Bedale, North Yorkshire DL8 1RG, DL8 — £525,000 • 2 bed • 2 bath • 1275 ft²
Land for sale in Wetherby Road, LS14 — POA • 1 bed • 1 bath • 2496 ft²
3 bedroom farm house for sale in Sycamore Farm, Helme, HD9 — £1,250,000 • 3 bed • 2 bath • 1480 ft²
4 bedroom house for sale in Waplington, near Allerthorpe, York, YO42 — £685,000 • 4 bed • 3 bath • 1820 ft²






































































