Large single-storey home with conservatory and double garage near village amenities.
Detached single-storey bungalow on a large corner plot
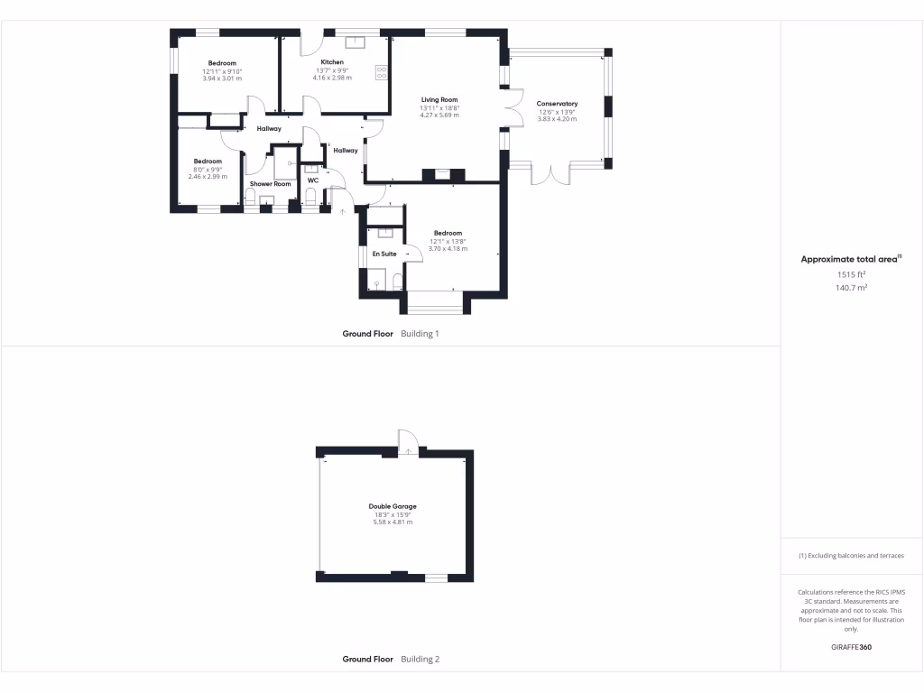
Set on a generous corner plot in sought-after Bransgore, this detached three-bedroom bungalow combines spacious single-storey living with attractive outdoor space. The large dual-aspect living room flows into an impressive conservatory; the master bedroom includes a bay window, built wardrobes and an en suite, while a separate cloakroom and principal shower room add practical convenience. Externally there are gated driveways, an electrically operated double garage with loft storage, and well-stocked gardens including a patio and summerhouse.
The interior is described as well maintained and beautifully presented, with a tasteful fitted kitchen/breakfast room and double glazing installed after 2002. Heating is mains gas via boiler and radiators, and the property is freehold with no flood risk and low local crime — helpful for peace of mind. Local amenities, a primary school rated Good, and New Forest countryside are all within easy reach, with Christchurch coast a short drive away.
Practical points to note: the house was constructed around 1976–82 and has cavity walls with partial insulation (assumed), so buyers seeking the highest energy efficiency may wish to consider further insulation works. Council Tax is above average (Band E). The third bedroom is a smaller double, and while the home is well presented it still offers scope for buyers to modernise or extend (subject to planning) to suit long-term needs.
2 bedroom bungalow for sale in Bransgore Gardens, Bransgore, Christchurch, Dorset, BH23 — £550,000 • 2 bed • 1 bath • 1064 ft²
3 bedroom bungalow for sale in Brookside Road, Bransgore, Christchurch, Dorset, BH23 — £535,000 • 3 bed • 1 bath • 1291 ft²
2 bedroom bungalow for sale in Elmers Way, Bransgore, Christchurch, Dorset, BH23 — £450,000 • 2 bed • 1 bath • 857 ft²
3 bedroom bungalow for sale in Woodlands Close, Bransgore, Christchurch, Dorset, BH23 — £425,000 • 3 bed • 1 bath • 670 ft²
3 bedroom detached bungalow for sale in Bransgore Gardens, Bransgore, BH23 — £535,000 • 3 bed • 1 bath • 9000 ft²
3 bedroom bungalow for sale in Ringwood Road, Bransgore, Christchurch, Dorset, BH23 — £595,000 • 3 bed • 1 bath • 1087 ft²






























































































