Chain-free three-bedroom terraced house with driveway and garage, ready to renovate and personalise..
Three generous double bedrooms
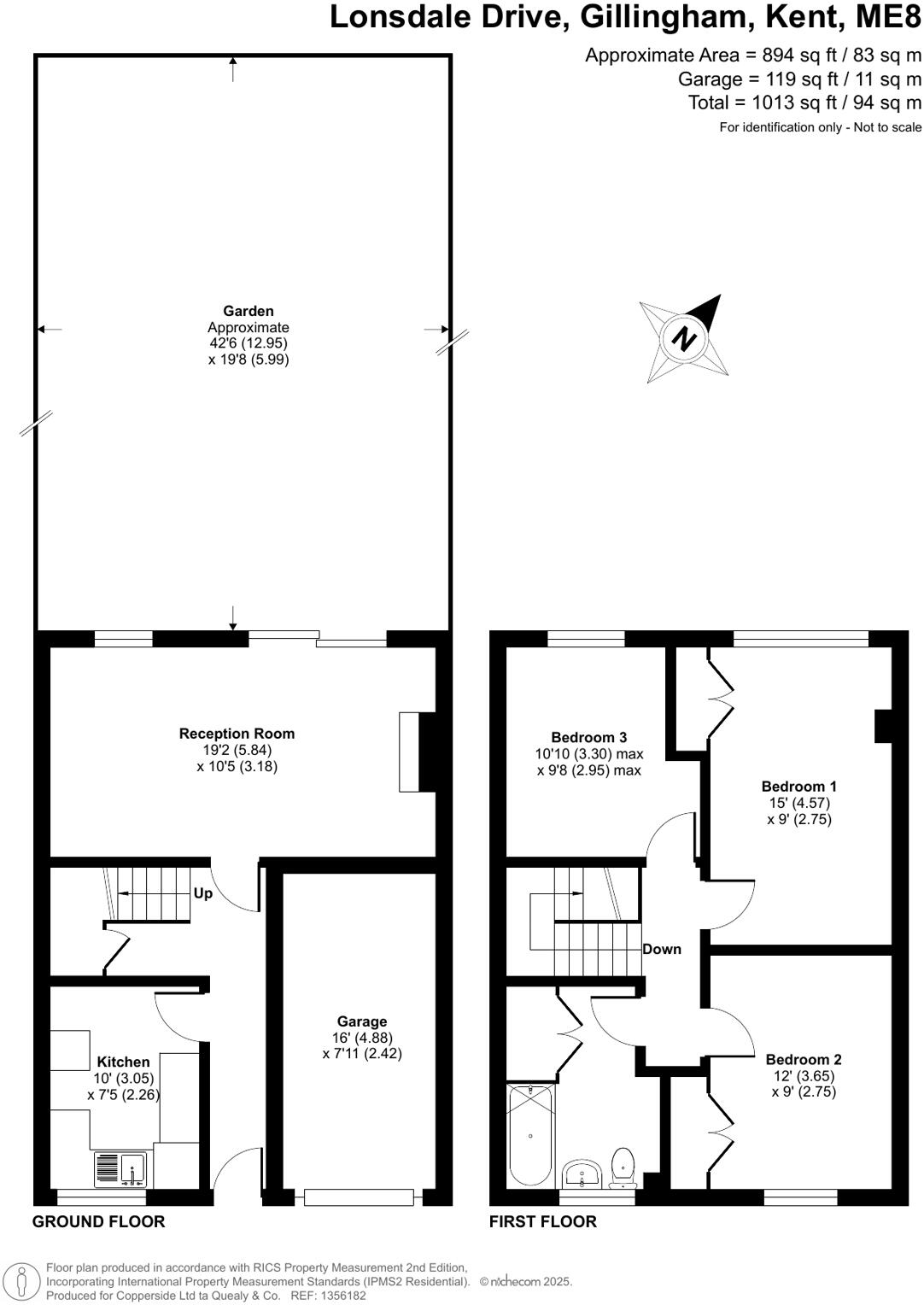
This mid-20th-century three-bedroom terraced house on Lonsdale Drive offers straightforward living with clear potential. The large, bright living room and three generous double bedrooms provide comfortable space for a growing household or rental tenants. The driveway and single garage add useful off-road parking and potential for conversion, subject to planning.
The property is being sold chain free and is set in a quiet, comfortable suburbia close to shops, bus links and several good primary and secondary schools, including high-performing grammar and secondary options. Broadband and mobile signal are strong, and local crime levels are low, supporting everyday convenience and peace of mind.
The house requires redecoration and broader renovation to unlock full value — the rear garden is overgrown and needs maintenance, and the property is offered with an assumed cavity wall construction without added insulation. There is a single bathroom, and tenure details are not specified, so buyers should confirm tenure and running costs during survey and legal checks.
For first-time buyers and investors the home represents a practical purchase: a modest footprint (894 sq ft) on a small plot in a very affluent area, with scope to modernise, improve energy performance and add value through targeted upgrades.
3 bedroom terraced house for sale in Lonsdale Drive, Rainham, Kent, ME8 — £350,000 • 3 bed • 1 bath • 1150 ft²
3 bedroom town house for sale in Macklands Way, Rainham, Kent, ME8 — £300,000 • 3 bed • 1 bath • 481 ft²
3 bedroom terraced house for sale in Pembury Way, Rainham, Gillingham, ME8 — £325,000 • 3 bed • 1 bath • 958 ft²
3 bedroom semi-detached house for sale in Lonsdale Drive, Gillingham, ME8 — £390,000 • 3 bed • 1 bath • 900 ft²
2 bedroom terraced house for sale in Wildman Close, Rainham, ME8 — £265,000 • 2 bed • 1 bath • 731 ft²
3 bedroom terraced house for sale in Style Close, Gillingham, Kent, ME8 — £280,000 • 3 bed • 1 bath • 830 ft²


















































































