GU24 9XA - 4 bedroom detached house for sale in Kerria Way, West End,…

View on Property Piper

4 bedroom detached house for sale in Kerria Way, West End, Woking, Surrey, GU24

Summary - 11 KERRIA WAY WEST END WOKING GU24 9XA

4 bed 2 bath Detached

**Standout Features:**
- Spacious, extended detached family home in excellent condition
- Approximately 670m from Gordons School and walking distance to Holy Trinity Primary School
- Stunning open plan kitchen/diner with pitched roof and Velux windows
- Four well-proportioned bedrooms, including an ensuite master
- Additional reception room currently used as an office
- Driveway parking for 2-3 cars and a pleasant rear garden with decking

**Summary:**
This beautifully maintained detached family home in West End, Woking, perfectly blends modern living with excellent accessibility to top-rated schools. The heart of the home is a remarkable open plan kitchen/dining area, designed with a pitched roof and ample light from Velux windows, complemented by granite countertops and a spacious island. Enjoy the comfort of two versatile reception rooms, including a cozy lounge and an adjoining family room. With four sizable bedrooms upstairs, the master suite features an ensuite, while the remainder share a well-appointed family bathroom.

The exterior boasts a decently sized rear garden with a lawn and a large deck, ideal for entertaining, and the driveway provides off-street parking for multiple vehicles. Set in an affluent suburb with low crime rates and fast broadband, this home is perfect for families seeking a friendly community atmosphere. Don't miss out on this exceptional opportunity—properties in this desirable location with such attributes are in high demand!

Property Details

Brochure Descriptions

Image Descriptions

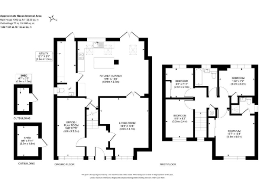
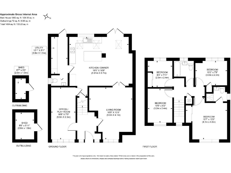
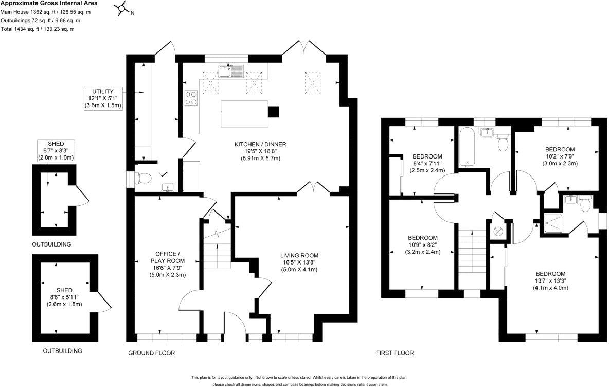
Floorplan Description

Rooms

Textual Property Features

Detected Visual Features

EPC Details

Nearby Schools

Nearest Bars And Restaurants

,,,,}

Nearest General Shops

,,}

Nearest Grocery shops

,,}

Nearest Supermarkets

,,}

Nearest Religious buildings

,,}

Nearest Medical buildings

,,,}

Nearest Airports

,}

Nearest Leisure Facilities

,,,,}

Nearest Tourist attractions

,,}

Nearest Train stations

,,,,}

Nearest Bus stations and stops

,,,,}

Nearest Hotels

,,}

Tags

Local Market Stats

AirBnB Data

Similar Properties

Meta

High Res Images

Compatible Images

Low res Images

Thumbnails

Raw Images

High Res Floorplan Images

Compatible Floorplan Images

Low res Floorplan Images

FloorplanImages Thumbnail

Raw Floorplan Images