TN38 9JJ - 5 bedroom detached house for sale in Harley Shute Road, St.…

View on Property Piper

5 bedroom detached house for sale in Harley Shute Road, St. Leonards-On-Sea, TN38

Summary - 221 HARLEY SHUTE ROAD ST. LEONARDS-ON-SEA TN38 9JJ

5 bed 2 bath Detached

Large period family house with west garden, double garage and flexible 36ft top-floor space.
Five bedrooms across three floors, over 3,000 sq ft
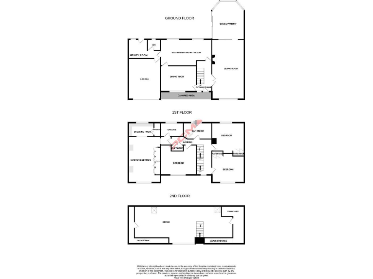
A substantial five-bedroom detached family home arranged over three floors, offering more than 3,000 sq ft of versatile living space. The house sits slightly elevated with a wide driveway, integral double garage and a generous, west-facing rear garden with raised granite patio — perfect for family entertaining and afternoon sun.

Ground floor living is designed for family life: an impressive double-aspect lounge with brick fireplace flows into a conservatory, alongside a separate dining room, large kitchen-breakfast room and useful utility. The first floor provides a generous master with dressing room and en suite, plus three further double bedrooms and a family bathroom. The second floor is a flexible 36ft space suitable as a fifth bedroom, office or playroom.

Practical strengths include mains gas central heating, double glazing, plentiful built-in storage and off-street parking for multiple cars. The house’s size and layout make it adaptable for home-working, multigenerational living or expanded family needs.

Important considerations: the property dates from c.1930–1949 so some updating may be needed to modern standards; Council Tax Band F means higher ongoing costs. Any new open fire or stove installation would require the relevant consent. Viewing is recommended to appreciate the scale and versatility on offer.

Property Details

Brochure Descriptions

Image Descriptions

Floorplan Description

Rooms

Textual Property Features

Target Audience

AI Tags

Detected Visual Features

EPC Details

Nearby Schools

Nearest Bars And Restaurants

,,,,}

Nearest General Shops

,,}

Nearest Grocery shops

,,}

Nearest Supermarkets

,,}

Nearest Religious buildings

,,}

Nearest Medical buildings

,,,}

Nearest Leisure Facilities

,,,,}

Nearest Tourist attractions

,,}

Nearest Train stations

,,,,}

Nearest Bus stations and stops

,,,,}

Nearest Hotels

,,}

Tags

Local Market Stats

Similar Properties

Meta

High Res Images

Compatible Images

Low res Images

Thumbnails

Raw Images

High Res Floorplan Images

Compatible Floorplan Images

Low res Floorplan Images

FloorplanImages Thumbnail

Raw Floorplan Images