**Key Features:**
- 4-bedroom end of terrace house in Cambridge's cosmopolitan neighborhood
- Modern, three-story design with stylish brick exterior and large windows
- Upgraded kitchen with integrated appliances and contemporary finishes worth £22,000
- Professionally landscaped garden valued at £9,000
- £30,000 assistance towards deposit available
- Ready to move into with included furniture and fittings worth £22,000
- Proximity to excellent schools and very low crime rates, enhancing family life
- Potential for stamp duty savings up to £6,250 until March 2025
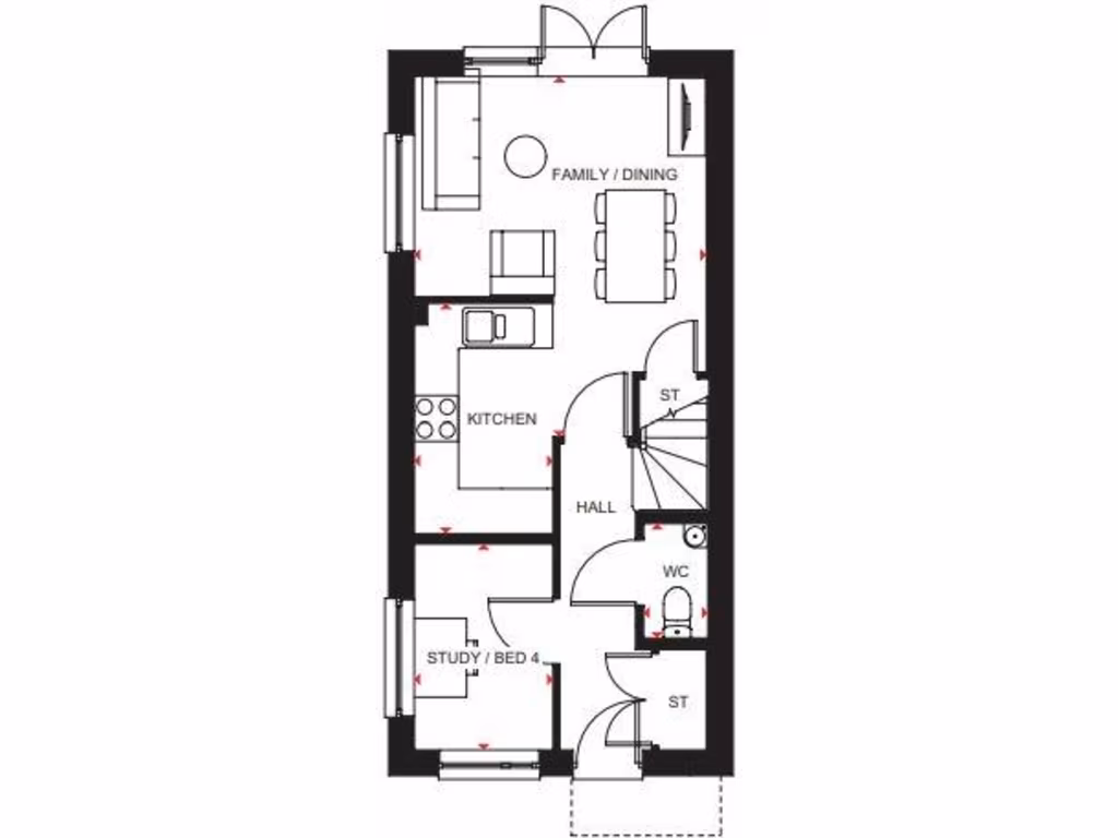
Discover this stunning 4-bedroom end of terrace home on Lawrence Weaver Road, perfect for first-time buyers and families looking to settle in Cambridge. Boasting a sophisticated open-plan layout, the heart of the home is a beautifully upgraded kitchen that flows into a bright living space extending through French doors to the landscaped garden—ideal for entertaining or relaxing in the sun. The spacious design features a dedicated study, an en suite main bedroom on the first floor, and two additional bedrooms with a balcony on the top level.
While the total size is cozy at 926 sq ft, every inch has been designed for modern comfort and style. The community is very affluent, offering an inviting atmosphere with parks nearby and excellent schools, including the Outstanding-rated University of Cambridge Primary School. Given the included furnishings and the financial incentives available now, this property represents not just a home but an exceptional opportunity. Don’t miss out—these valuable offerings won’t last long!
4 bedroom terraced house for sale in Lawrence Weaver Road,
Cambridge,
Cambridgeshire,
CB3 0GX, CB3 — £679,995 • 4 bed • 1 bath • 1243 ft²
4 bedroom detached house for sale in Lawrence Weaver Road,
Cambridge,
Cambridgeshire,
CB3 0GX, CB3 — £689,995 • 4 bed • 1 bath • 886 ft²
4 bedroom end of terrace house for sale in Lawrence Weaver Road,
Cambridge,
Cambridgeshire,
CB3 0GX, CB3 — £679,995 • 4 bed • 1 bath • 1072 ft²
4 bedroom terraced house for sale in Lawrence Weaver Road,
Cambridge,
Cambridgeshire,
CB3 0GX, CB3 — £679,995 • 4 bed • 1 bath • 1243 ft²
5 bedroom detached house for sale in Lawrence Weaver Road,
Cambridge,
Cambridgeshire,
CB3 0GX, CB3 — £799,995 • 5 bed • 1 bath • 1678 ft²
5 bedroom detached house for sale in Lawrence Weaver Road,
Cambridge,
Cambridgeshire,
CB3 0GX, CB3 — £919,995 • 5 bed • 1 bath • 1487 ft²






















































