**Standout Features:**
- Prime location in the heart of Sandown, just moments from the beach
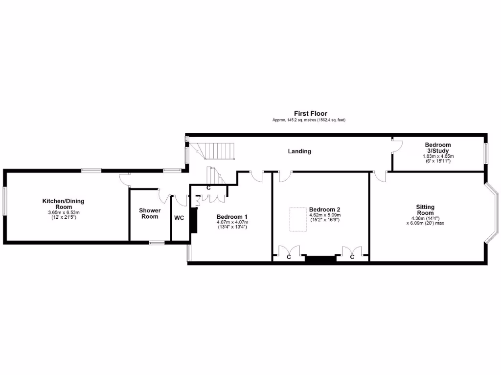
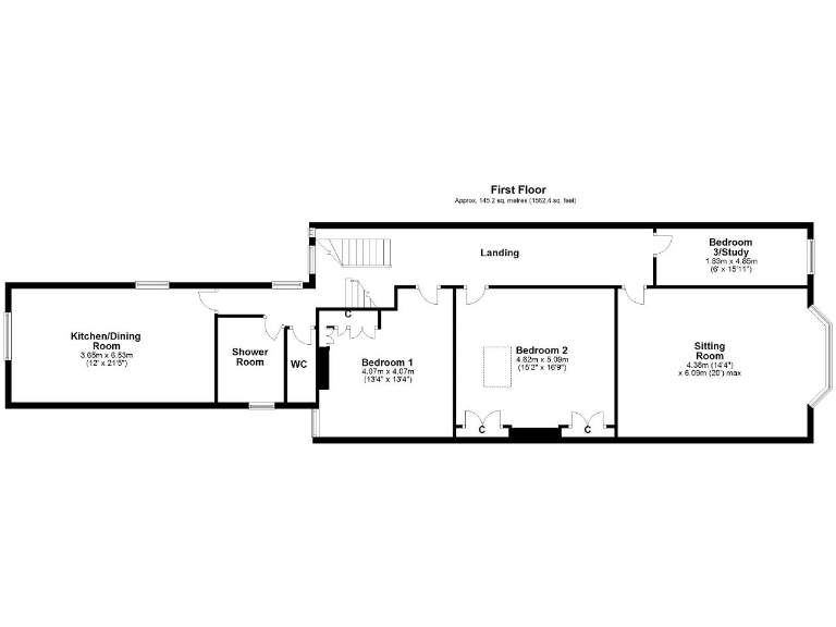
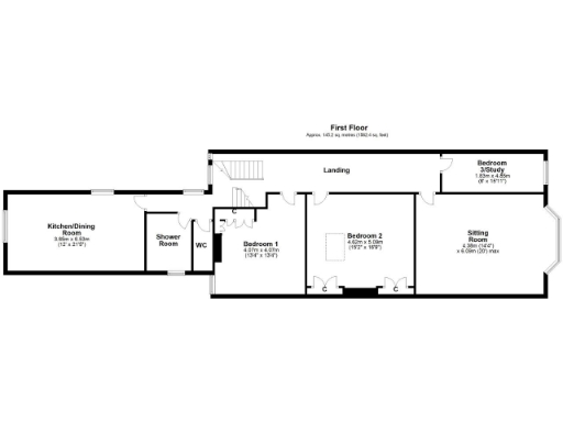
- Spacious 1,562 sq. ft. maisonette with period features
- 2 large double bedrooms + 1 single bedroom
- High ceilings and large windows enhance natural light
- Private entrance and separate WC
- Close proximity to local amenities, cafes, and transport links
- Suitable for permanent living or a coastal retreat
- Leasehold tenure at an attractive price of £195,000
**Summary:**
Discover this charming first-floor maisonette nestled in the vibrant heart of Sandown, just a stone's throw from the sandy beaches and coastal walks. With 1,562 sq. ft. of spacious and naturally bright living space, this property boasts the best of both comfort and character with its period features, high ceilings, and large rooms. The layout includes two generous double bedrooms, a single bedroom, a welcoming sitting room with a bay window, a dual aspect kitchen diner, a shower room, and a cloakroom, making it ideal for families or those seeking a tranquil retreat by the sea.
This home is perfectly positioned for both convenience and leisure, surrounded by a variety of eateries, local shops, and excellent transport links. While the property does require some modernization, its superb location, combined with the opportunity to capitalize on its charm and potential, makes this an exceptional investment. With an affordable council tax rating, this maisonette is an attractive prospect for first-time buyers, growing families, or anyone eager to embrace coastal living. Don't miss out on this unique opportunity—properties in such a coveted location tend to sell quickly!
2 bedroom maisonette for sale in High Street, Sandown, Isle of Wight, PO36 — £165,000 • 2 bed • 1 bath • 758 ft²
3 bedroom flat for sale in Sandown, Isle of Wight, PO36 — £200,000 • 3 bed • 1 bath • 1023 ft²
3 bedroom apartment for sale in High Street, Sandown, Isle of Wight, PO36 — £170,000 • 3 bed • 2 bath • 903 ft²
2 bedroom maisonette for sale in Beachfield Road, Sandown, Isle of Wight, PO36 — £145,000 • 2 bed • 1 bath • 582 ft²
6 bedroom terraced house for sale in Melville Street, Sandown, PO36 — £385,000 • 6 bed • 4 bath • 1578 ft²
2 bedroom flat for sale in High Street, SANDOWN, Isle of Wight, PO36 — £125,000 • 2 bed • 1 bath • 737 ft²






















































