Spacious period home with large garden and detached garage.
Views over Milford Haven waterways from first-floor rooms
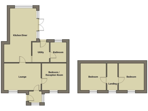
A roomy Victorian cottage set on a large plot with views across the Milford Haven waterways. The house keeps much of its original character — fireplaces, original floorboards and high ceilings in places — while offering a generous open-plan kitchen/diner, utility room and a substantial detached garage. The front and rear gardens are low-maintenance and offer patio, lawn and countryside outlooks.
This three-bedroom property will suit buyers who value period features and space: bedrooms all face the estuary and the first-floor outlook is a clear selling point. The ground floor layout includes a comfortable lounge with log burner and a long kitchen/diner with French doors to the side, making family living and entertaining straightforward.
Buyers should note a few material points: there is a single bathroom for three bedrooms, the EPC is currently TBC, and the property sits in a very deprived local area classification which may affect local services and long-term values. Broadband is average despite excellent mobile signal. Overall the house offers clear potential for cosmetic updating or modest refurbishment to modernise services and improve energy efficiency.
Practical benefits include freehold tenure, off-road parking and a large garage with rear access. For anyone seeking a character home with waterside views and plenty of outdoor space, this cottage presents a strong canvas; tradespeople or buyers prepared to undertake some updating will get the most from it.
6 bedroom detached house for sale in Burton Ferry, Milford Haven, SA73 — £575,000 • 6 bed • 3 bath • 2431 ft²
5 bedroom semi-detached house for sale in Pier Road, MILFORD HAVEN, SA73 — £450,000 • 5 bed • 2 bath • 3696 ft²
3 bedroom detached house for sale in The Rath, Milford Haven, Pembrokeshire, SA73 — £240,000 • 3 bed • 1 bath • 1308 ft²
3 bedroom semi-detached house for sale in Burton, Milford Haven, SA73 — £375,000 • 3 bed • 2 bath • 1448 ft²
3 bedroom detached house for sale in Pier Road, Milford Haven, Pembrokeshire, SA73 — £399,999 • 3 bed • 2 bath • 1411 ft²
3 bedroom detached house for sale in Main Road, Waterston, Milford Haven, Pembrokeshire, SA73 — £275,000 • 3 bed • 2 bath






































































