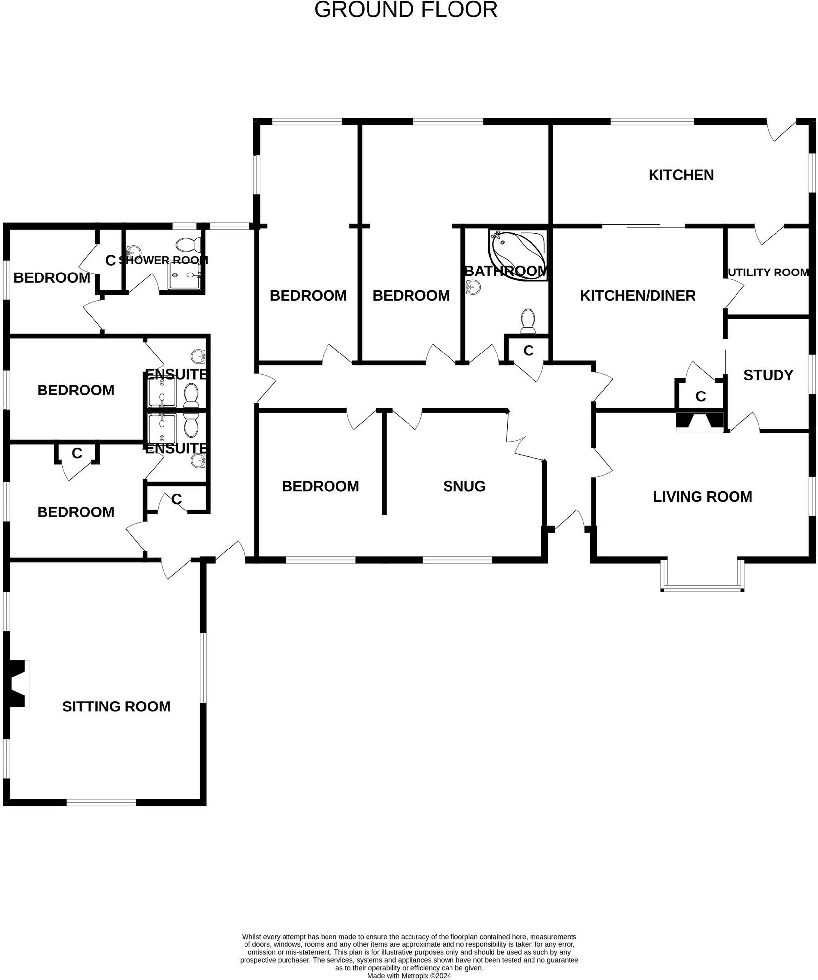
**Standout Features:**
- Substantial 6-bedroom detached house with stunning sea views
- Prime elevated location in Kilchoan on the Ardnamurchan Peninsula
- Two en-suite shower rooms, spacious lounge, and two kitchen/diners
- Large landscaped garden, detached garage, and greenhouse
- Dual aspect lounge with a gas fireplace
- Convenient layout perfect for families or as a rental investment
- EPC Rating: F 34
This impressive 6-bedroom detached home in Kilchoan is a unique opportunity for families or investors seeking a tranquil yet scenic lifestyle. Nestled in a desirable elevated location, Caberfeidh offers breathtaking views of the Sound of Mull and expansive garden grounds, perfect for outdoor enthusiasts or those looking to create their own private oasis. The property’s generous layout includes two kitchen/diners, a spacious lounge with a feature gas fireplace, a separate dining room, and a study, making it ideal for versatile living.
While the home boasts excellent size and potential, it does require some upgrades with an EPC rating of F 34, indicating room for improvement in energy efficiency. The expansive garden features a professionally landscaped design, including mature shrubs, a greenhouse, and a stone-built wishing well, providing charm and tranquility. Additionally, the double-glazing and oil and gas central heating ensure a comfortable living environment.
Located in a picturesque crofting village, with local amenities and ferry access to the Isle of Mull, this property is perfect for those seeking to enjoy the peace of rural life without sacrificing connectivity or convenience. Act now to seize this opportunity to own a substantial family home or investment property in one of Scotland's most stunning locations.
3 bedroom detached house for sale in Lighthouse View, Kilchoan, Acharacle, PH36 4LL, PH36 — £295,000 • 3 bed • 3 bath • 1335 ft²
Detached house for sale in Druimnacroish Guest House, Dervaig, Argyll & Bute, PA75 — £895,000 • 1 bed • 1 bath
5 bedroom detached house for sale in Far View Cottage, Pier Road, Kilchoan, PH36 — £460,000 • 5 bed • 4 bath • 2805 ft²
4 bedroom detached house for sale in Sealladh an Eilean, Acheteny, Kilchoan, PH36 4LG, PH36 — £470,000 • 4 bed • 3 bath • 1601 ft²
3 bedroom house for sale in Dubh Choirean, Dervaig, PA75 — £330,000 • 3 bed • 1 bath • 1607 ft²
3 bedroom detached bungalow for sale in Portuairk, Kilchoan, PH36 — £375,000 • 3 bed • 2 bath • 1290 ft²






















































































































































































