Character semi with large gardens, driveway and extension, chain free.
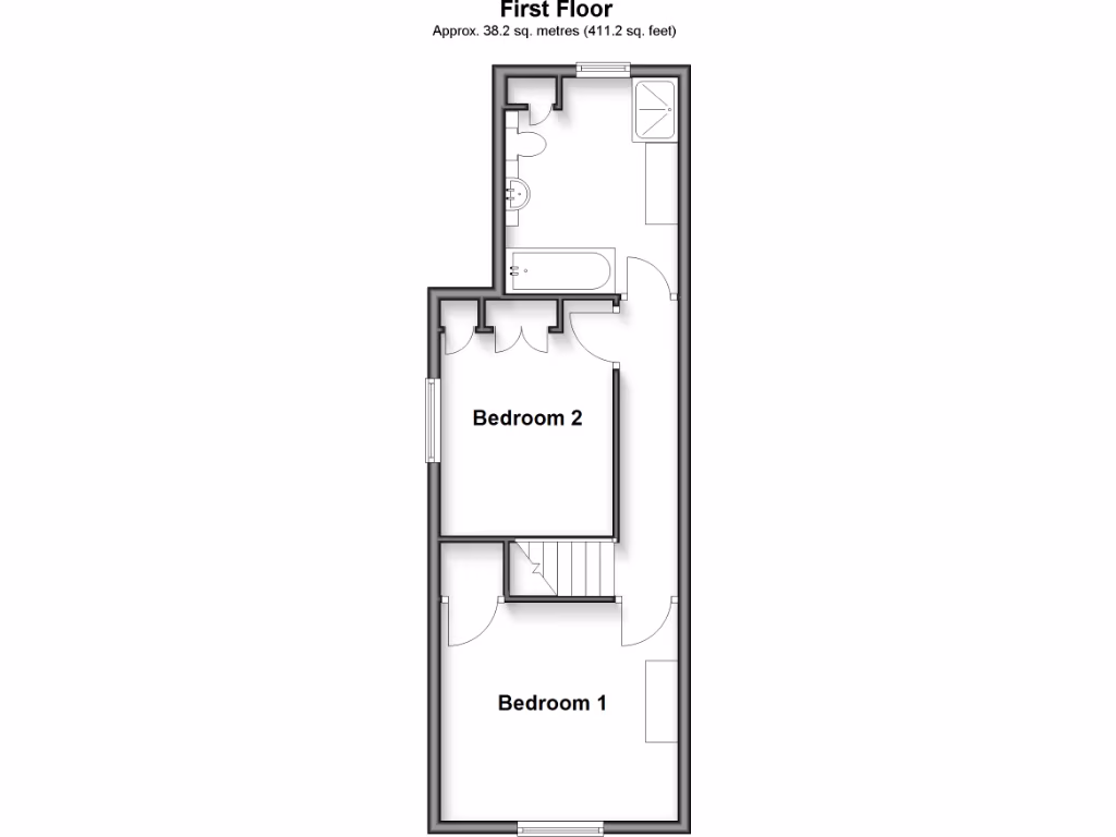
Three bedrooms plus extended ground-floor bedroom and en suite
This traditional three-bedroom semi-detached home in Sandown offers generous living space, a rear extension and roomy front and rear gardens — ideal for families who value outdoor space and parking. The extension provides a ground-floor bedroom with an en suite shower room, offering potential for a downstairs annexe or independent teenager space.
The house is liveable but requires some modernisation throughout: cosmetic updates, kitchen and bathroom improvements and likely insulation upgrades are needed. Double glazing is installed (pre-2002) and heating is by mains gas boiler and radiators. Walls are cavity construction with assumed no insulation, so buyers should budget for energy-efficiency work.
Practical advantages include a good-sized driveway, chain-free sale, low local crime, fast broadband and excellent mobile signal. The property sits a short walk from cliff paths, the beach and several well-rated primary and secondary schools, making it well placed for family life. Buyers should verify planning and building regulation consents for the extension and check services and appliances before purchase.
3 bedroom semi-detached house for sale in St. Johns Crescent, Sandown, PO36 — £205,000 • 3 bed • 1 bath • 937 ft²
3 bedroom semi-detached house for sale in St. John's Crescent, Sandown, Isle of Wight, PO36 — £300,000 • 3 bed • 1 bath • 1163 ft²
3 bedroom end of terrace house for sale in Perowne Way, Sandown, Isle of Wight, PO36 — £250,000 • 3 bed • 1 bath • 829 ft²
5 bedroom semi-detached house for sale in Grove Road, Sandown., PO36 — £395,000 • 5 bed • 3 bath • 1400 ft²
3 bedroom semi-detached house for sale in Lake Green Road, Sandown, Isle of Wight, PO36 — £190,000 • 3 bed • 1 bath • 604 ft²
3 bedroom link detached house for sale in Beachfield Road, Sandown, Isle of Wight, PO36 — £350,000 • 3 bed • 2 bath • 851 ft²


















































































