Central, characterful home ideal for commuters or first-time buyers.
Moments from High Street and station
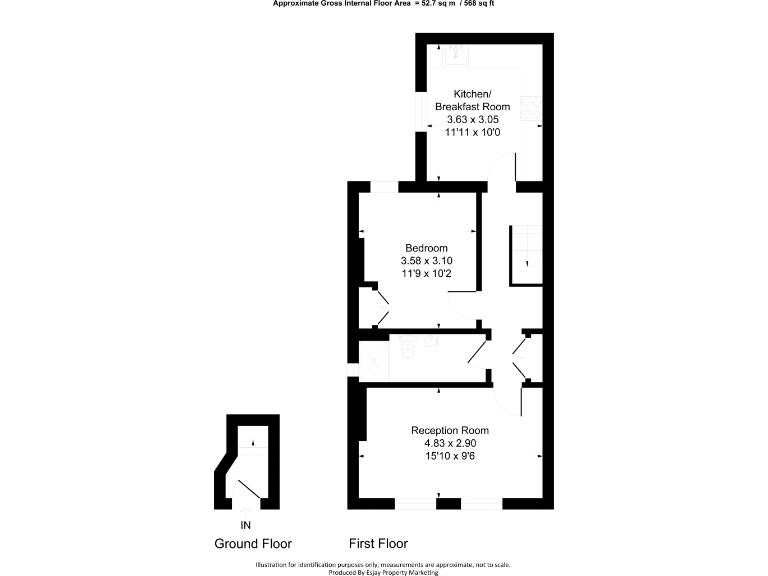
Set on the first floor of an attractive late Victorian semi-detached building, this one-bedroom maisonette is a compact, well-presented home in the heart of New Malden. Its west-facing reception room and large front windows make the living space bright, while high ceilings and period brickwork give character and provenance. The smart fitted kitchen/breakfast room and stylish shower room are modern and practical, ready for immediate occupation.
Practical points include a private section of the rear garden accessed at ground level and a long share of freehold with 987 years remaining. Double glazing (installed post-2002), mains gas central heating with boiler and radiators, excellent mobile signal and fast broadband make the flat well-equipped for everyday life and working from home. The footprint is about 568 sq ft, with a separate reception and a comfortably sized bedroom.
This location is the main draw: moments from the High Street and the station, local shops and a wide choice of primary and secondary schools. The property suits first-time buyers, buy-to-let investors or downsizers seeking central convenience with period charm. Council tax is described as affordable, and the area is generally affluent.
Buyers should note some practical considerations: the accommodation is compact, the rear garden is informal and overgrown and will need landscaping, and the building is of solid brick construction with no assumed wall insulation. Crime in the immediate area is recorded as high, which may concern some purchasers. Overall this is a characterful, centrally located one-bedroom home with clear appeal but realistic upkeep and location trade-offs.
2 bedroom maisonette for sale in Blagdon Road, New Malden, KT3 — £425,000 • 2 bed • 1 bath • 667 ft²
1 bedroom flat for sale in Gloster Road, New Malden, KT3 — £320,000 • 1 bed • 1 bath • 498 ft²
2 bedroom flat for sale in Kingston Road, New Malden, KT3 — £475,000 • 2 bed • 1 bath • 762 ft²
2 bedroom flat for sale in Montem Road, New Malden, KT3 — £385,000 • 2 bed • 1 bath • 811 ft²
1 bedroom maisonette for sale in Burlington Road, New Malden, KT3 — £400,000 • 1 bed • 1 bath • 526 ft²
2 bedroom flat for sale in Albany Road, New Malden, KT3 — £400,000 • 2 bed • 1 bath • 732 ft²






































