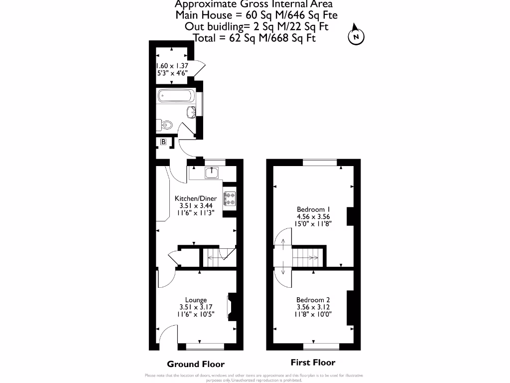
**Standout Features:**
- Charming 2-bedroom terraced house, chain-free
- Convenient ground floor bathroom
- Spacious double bedrooms with natural light
- Private garden and useful outbuilding for storage
- Good condition with cosmetic updates needed
- Excellent location near local amenities and transport links
- Low council tax band (A) and EPC rating D
**Summary:**
Discover this charming 2-bedroom terraced house on Rutland Street, perfect for first-time buyers and investors alike. With a spacious living room, a well-equipped kitchen featuring modern finishes, and a convenient downstairs bathroom, this home provides a comfortable living space. Upstairs, both double bedrooms are generously sized, bathed in natural light, offering flexibility for different living arrangements.
The property includes a private garden, ideal for gardening or leisure, complemented by an outbuilding for additional storage. While the house is in good condition, it presents an exciting opportunity for renovation, allowing you to personalize it and truly make it your own. Enjoy ample on-street parking and the benefit of being chain-free, making for a smooth purchasing process.
Located in an area with a rich urban cultural mix, this home provides easy access to local amenities such as shops, schools with good Ofsted ratings, and transport links, enhancing everyday convenience. Act quickly—this appealing property won’t last long in today’s market!
2 bedroom terraced house for sale in Well Street, Stoke On Trent, ST1 — £95,000 • 2 bed • 1 bath • 646 ft²
2 bedroom terraced house for sale in Penkhull New Road, Stoke-On-Trent, Staffordshire, ST4 — £80,000 • 2 bed • 1 bath • 603 ft²
2 bedroom terraced house for sale in Leason Street, Stoke, Stoke-on-Trent, ST4 — £95,000 • 2 bed • 1 bath • 847 ft²
2 bedroom terraced house for sale in Gable Street, Stoke-On-Trent, ST4 — £100,000 • 2 bed • 1 bath • 753 ft²
2 bedroom terraced house for sale in Turner Street, Birches , Stoke-on-Trent, ST1 — £100,000 • 2 bed • 1 bath • 829 ft²
2 bedroom terraced house for sale in Selwyn Street, Stoke-On-Trent, ST4 — £95,000 • 2 bed • 1 bath • 732 ft²














































