Convenient central location with communal gardens and parking for over-60s.
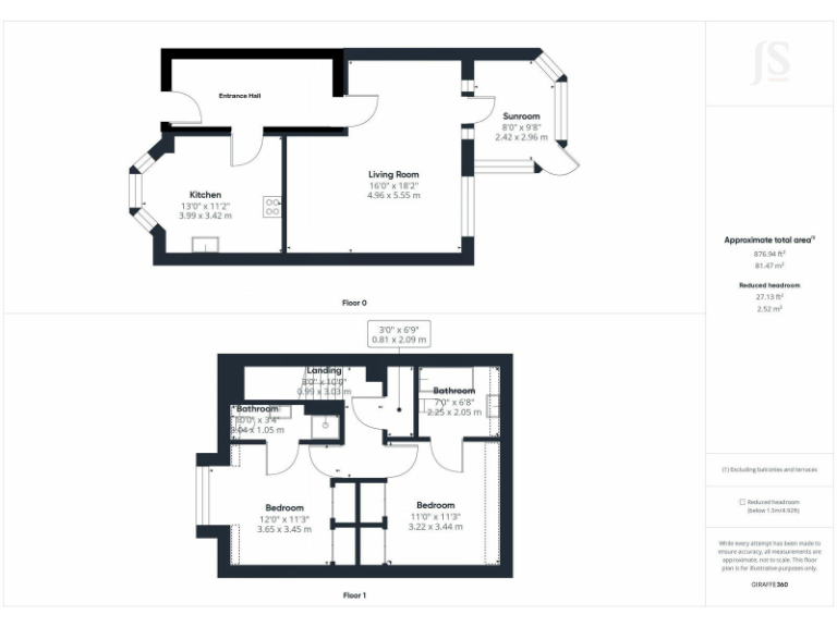
Two double bedrooms, each with an ensuite
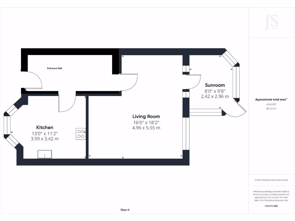
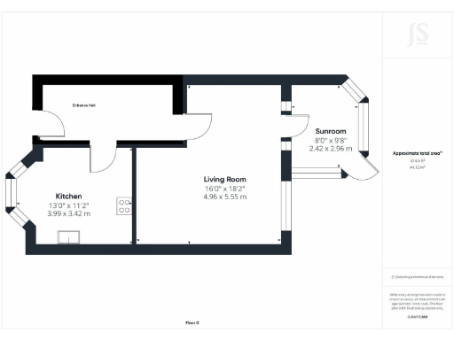
A well-proportioned two-bedroom mid-terrace retirement home, 55 Penns Court sits close to Steyning High Street and communal gardens. The house offers a spacious lounge, conservatory and a kitchen/dining area, plus two bedrooms each with an ensuite — practical for independent retirees or downsizers wanting separate guest or dressing areas. Off-street parking and access to attractive shared gardens add convenience and outdoor space without heavy upkeep.
Practical features include a Carelink emergency alarm and a part-time house manager, giving peace of mind for homeowners aged 60 and over. The property is chain-free and extends to approximately 980 sq ft, with modern double glazing and gas central heating. The layout is traditional and immediately usable, though some cosmetic updating (carpets, kitchen finishes) is likely to modernise the interior.
Important considerations: the property is leasehold with about 64 years remaining. Many mortgage lenders will refuse lending on shorter leases, so buyers should confirm finance options early. Annual maintenance (approx. £2,048) and ground rent (£100 pa) cover building insurance, garden care and the alarm system. Council tax is above average, and local crime levels are reported as high — factors to weigh for safety and ongoing costs.
This home suits a purchaser seeking low‑maintenance, centrally located retirement accommodation with support features already in place. It offers ready-to-live-in space with potential to improve energy efficiency (cavity wall with assumed no insulation) and cosmetic elements to personalise over time.
2 bedroom end of terrace house for sale in Penns Court, Horsham Road, Steyning, West Sussex, BN44 3BF, BN44 — £400,000 • 2 bed • 1 bath • 1075 ft²
2 bedroom terraced house for sale in Penns Court, Horsham Road, Steyning, West Sussex, BN44 3BF, BN44 — £400,000 • 2 bed • 2 bath • 956 ft²
2 bedroom flat for sale in Steyning, BN44 — £210,000 • 2 bed • 1 bath • 649 ft²
2 bedroom flat for sale in Penns Court, Steyning, BN44 — £279,950 • 2 bed • 1 bath • 460 ft²
2 bedroom end of terrace house for sale in Penns Court, Steyning, BN44 3BF, BN44 — £400,000 • 2 bed • 1 bath • 1076 ft²
2 bedroom flat for sale in Horsham Road, Steyning, BN44 — £200,000 • 2 bed • 1 bath • 646 ft²






























































