Chain-free auction — 1930s semi with driveway, garden and strong transport links..
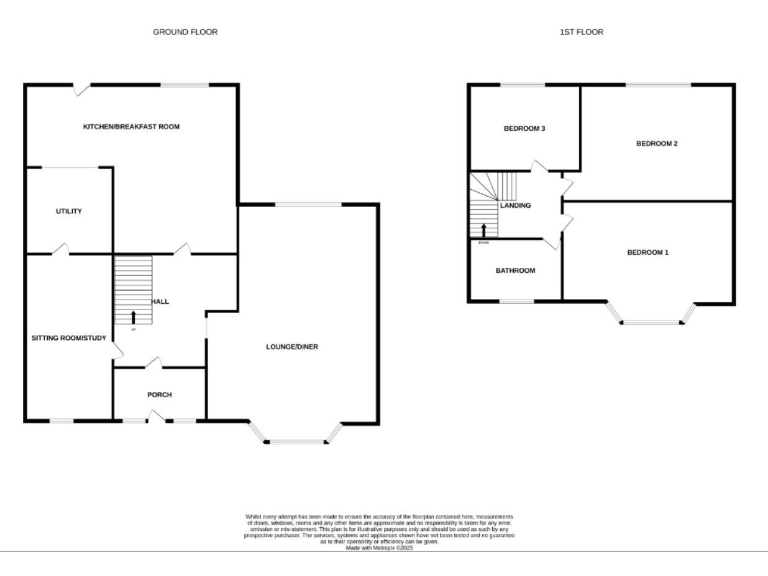
- Three bedrooms and family bathroom on first floor
- Lounge/dining room plus separate sitting room/study
- Kitchen with breakfast area and separate utility
- Gated driveway providing off-street parking
- Private rear garden with patio and lawn
- EPC rated D; likely needs cosmetic updating
- Sold by auction; buyer fees apply and reserve applies
- Area: above-average crime and higher deprivation indicators
A traditional 1930s semi-detached home offering solid space and straightforward potential for a growing family or investor. The property extends to about 1,131 sq ft across two floors with three bedrooms, a family bathroom and a practical ground-floor layout including a lounge/diner, separate sitting room/study, kitchen/breakfast area and utility. Outside there is a gated driveway and a private rear garden — useful for parking and family outdoor space.
This sale is by Modern Method of Auction, chain free. Buyers should note a buyer’s administration fee applies and the sale is subject to a reserve price. The house has double glazing and gas central heating, and an EPC rating of D — sensible for its age but not class-leading. The area has fast broadband and excellent mobile signal and offers very good road links (easy access to the M6 J9) and local schools within walking distance.
Practical realities: the neighbourhood records above-average crime and the local area shows higher deprivation indicators. The house dates from the 1930s and will benefit from cosmetic updating and potential internal improvements to fully realise value. Auction purchase suits buyers comfortable with a quicker, conditional sale process.
3 bedroom semi-detached house for sale in Pershore Road, Walsall, WS3 — £155,000 • 3 bed • 1 bath • 851 ft²
3 bedroom semi-detached house for sale in Wharwell Lane, Great Wyrley , WS6 — £190,000 • 3 bed • 1 bath • 966 ft²
3 bedroom semi-detached house for sale in Beatrice Street, Walsall, WS3 — £150,000 • 3 bed • 1 bath • 1023 ft²
3 bedroom semi-detached house for sale in Chestnut Drive, Great Wyrley, Walsall, Staffordshire, WS6 — £170,000 • 3 bed • 1 bath • 798 ft²
3 bedroom terraced house for sale in Bickley Road, Rushall, WS4 1JE, WS4 — £160,000 • 3 bed • 1 bath • 1066 ft²
3 bedroom semi-detached house for sale in 4 Rowland Gardens, Walsall, WS2 8UL, WS2 — £59,000 • 3 bed • 1 bath • 1041 ft²






























































