**Standout Features:**
- Four spacious bedrooms
- Characterful Victorian end-terrace style
- Enclosed cottage garden for relaxation
- Off-road parking driveway
- Close to schools, amenities, and public transport links
- Freehold tenure with low council tax
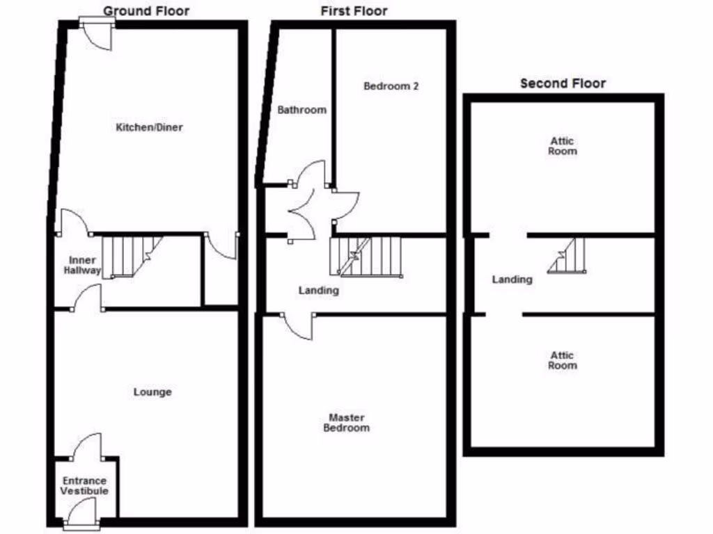
This charming four-bedroom end terrace house radiates character and warmth across three well-proportioned floors, making it an ideal home for families. The spacious lounge features large windows, enhancing natural light and providing a cozy yet inviting atmosphere perfect for gatherings. The open plan dining kitchen invites culinary creativity with ample space for a dining area, while the property's enclosed cottage garden offers a peaceful retreat.
Conveniently located near the town center, this home ensures easy access to local amenities, schools, and excellent public transport links, including train services to major cities such as Huddersfield, Leeds, and Manchester. While there is potential for future renovations in the attic space, the home is currently well-maintained with essential comforts like gas central heating.
The practicality of off-road parking, combined with the tranquil garden space, underscores this property's family-friendly appeal. Don’t miss out on this opportunity to secure a delightful home in an affluent community—properties like this don’t last long!
4 bedroom semi-detached house for sale in Greenside Road, Mirfield, West Yorkshire, WF14 — £300,000 • 4 bed • 2 bath • 1647 ft²
4 bedroom end of terrace house for sale in Bank Street, Mirfield, West Yorkshire, WF14 — £245,000 • 4 bed • 1 bath • 1690 ft²
2 bedroom terraced house for sale in Back Knowl Road, Mirfield, WF14 — £189,950 • 2 bed • 1 bath • 741 ft²
2 bedroom terraced house for sale in Littlemoor Road, Mirfield, WF14 — £195,000 • 2 bed • 1 bath • 874 ft²
4 bedroom terraced house for sale in Kitson Hill Road, Mirfield, West Yorkshire, WF14 — £375,000 • 4 bed • 3 bath • 1968 ft²
4 bedroom semi-detached house for sale in Water Royd Lane, Mirfield, WF14 9SB, WF14 — £329,000 • 4 bed • 2 bath • 1332 ft²






















































