FY2 0AA - 2 bedroom semidetached bungalow for sale in Shirley Crescen…

View on Property Piper

2 bedroom semi-detached bungalow for sale in Shirley Crescent, Thornton-Cleveleys, Lancashire, FY2

Summary - 35 Shirley Crescent, Bispham FY2 0AA

2 bed 1 bath Semi-Detached Bungalow

**Standout Features:**
- Newly renovated semi-detached bungalow
- 2 spacious double bedrooms and modern bathroom with roll top bath
- Integral garage and ample driveway parking
- Well-maintained front garden and west-facing courtyard with garden room
- Located near Bispham Village, transport, and the beach

**Potential Concerns:**
- No indication of structural integrity checks post-renovation
- Appliances and systems (heating, etc.) have not been tested

Step into luxury and comfort with this beautifully refurbished semi-detached bungalow, ideal for families or retirees seeking a peaceful yet vibrant community. Spanning approximately 1,084 square feet, this home features a modern kitchen with Siemens electric oven, plush living room boasting a classic marble fireplace, and ample natural light shining through UPVC double-glazed windows. Enjoy the convenience of an integral garage and parking for several vehicles, along with low-maintenance outdoor spaces featuring a west-facing courtyard perfect for entertaining.

Set in an affluent area near Bispham Village, residents will appreciate the proximity to good schools, parks, and stunning coastal views. Though recently renovated, potential buyers may want to consider the condition of the appliances and systems as they explore this promising investment. With modern amenities and a serene atmosphere, this property invites you to envision your future nestled in comfort and community. Act quickly—homes of this quality in desirable locations don’t last!

Property Details

Image Descriptions

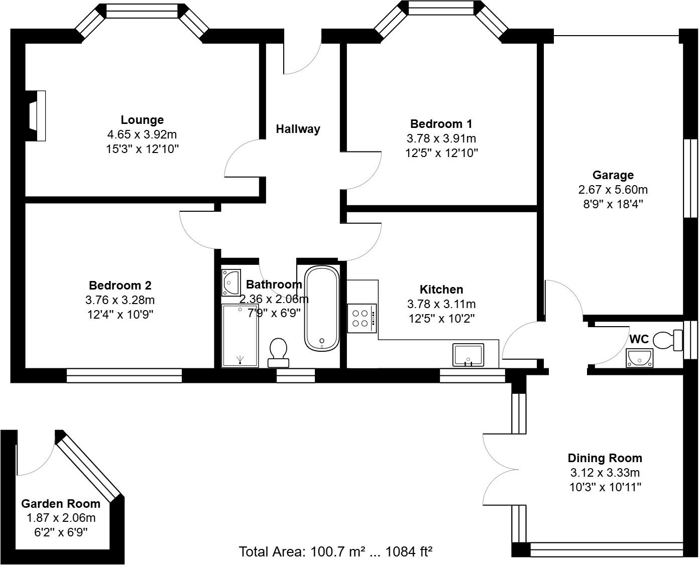
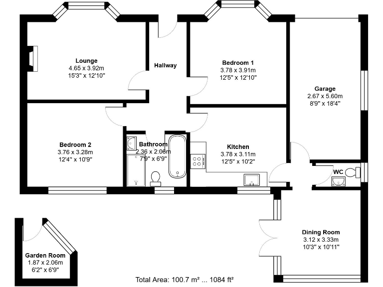
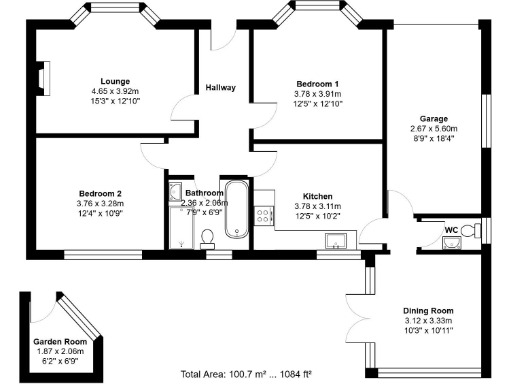
Floorplan Description

Rooms

Textual Property Features

Detected Visual Features

EPC Details

Nearby Schools

Nearest Bars And Restaurants

,,,,}

Nearest General Shops

,,}

Nearest Grocery shops

,,}

Nearest Supermarkets

,,}

Nearest Religious buildings

,,}

Nearest Medical buildings

,,,}

Nearest Leisure Facilities

,,,,}

Nearest Tourist attractions

,,}

Nearest Train stations

,,,,}

Nearest Bus stations and stops

,,,,}

Nearest Hotels

,,}

Tags

Local Market Stats

Similar Properties

Meta

High Res Images

Compatible Images

Low res Images

Thumbnails

Raw Images

High Res Floorplan Images

Compatible Floorplan Images

Low res Floorplan Images

FloorplanImages Thumbnail

Raw Floorplan Images