Well-located semi with good schools nearby and clear updating potential.
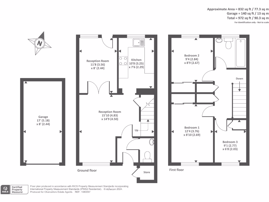
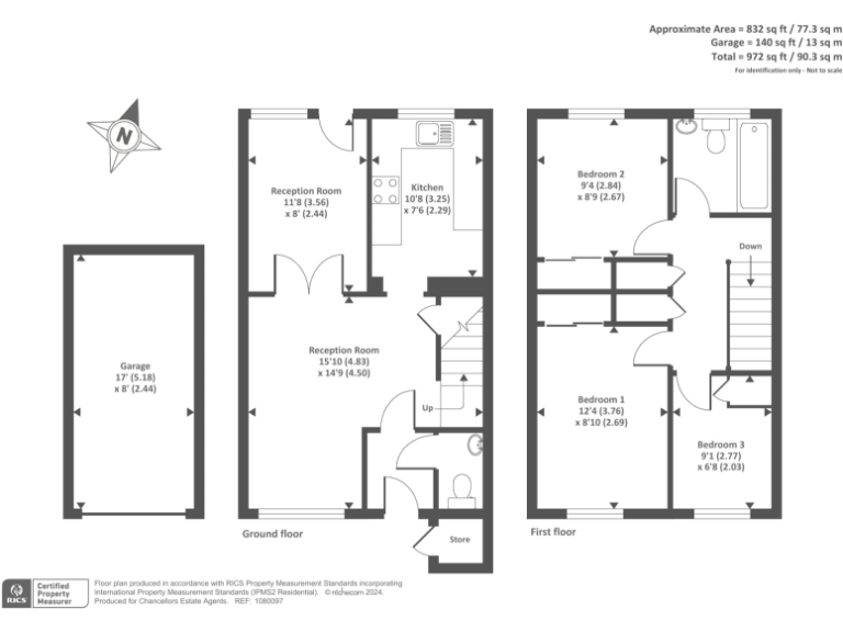
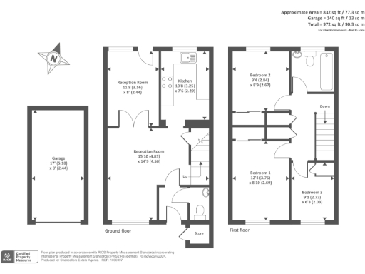
Freehold three-bedroom semi-detached home, circa 972 sq ft
Set on a quiet residential close in St Johns, this freehold three-bedroom semi offers comfortable family living within easy reach of Woking town centre. The layout includes two reception rooms, a separate kitchen, an entrance area and a downstairs WC — practical spaces for everyday life. Built in the 1980s and kept in good condition, the home benefits from double glazing and warm-air mains gas heating.
The property will suit families seeking good local schools and low-crime streets; several well-rated primaries and secondaries are nearby. The plot is small and the overall floor area is modest at around 972 sq ft, so outdoor space and storage are limited. Broadband speeds are slow in the area despite excellent mobile signal, which may affect home working or heavy streaming.
Internals show some period and vintage finishes — the kitchen has colorful, retro cabinets and could be refreshed or upgraded to add value. There is only one family bathroom upstairs, which could be a constraint for larger families or busy mornings. Overall this is a straightforward, well-located family home with clear scope for modest updating to modern standards.
3 bedroom semi-detached house for sale in St James Close, St Johns, Woking, GU21 — £647,500 • 3 bed • 1 bath • 1016 ft²
3 bedroom semi-detached house for sale in Hermitage Woods Crescent, Woking, Surrey, GU21 — £450,000 • 3 bed • 1 bath • 760 ft²
4 bedroom detached house for sale in St. Johns Road, Woking, Surrey, GU21 — £650,000 • 4 bed • 1 bath • 1098 ft²
3 bedroom semi-detached house for sale in Woking, Surrey, GU21 — £460,000 • 3 bed • 1 bath • 1103 ft²
3 bedroom semi-detached house for sale in York Road, Woking, Surrey, GU22 — £450,000 • 3 bed • 1 bath • 1044 ft²
3 bedroom semi-detached house for sale in Farm Road, Woking, Surrey, GU22 — £475,000 • 3 bed • 1 bath • 1069 ft²






































































